191 500€ (TVA 20%)
168 360€ (TVA 5.5%)
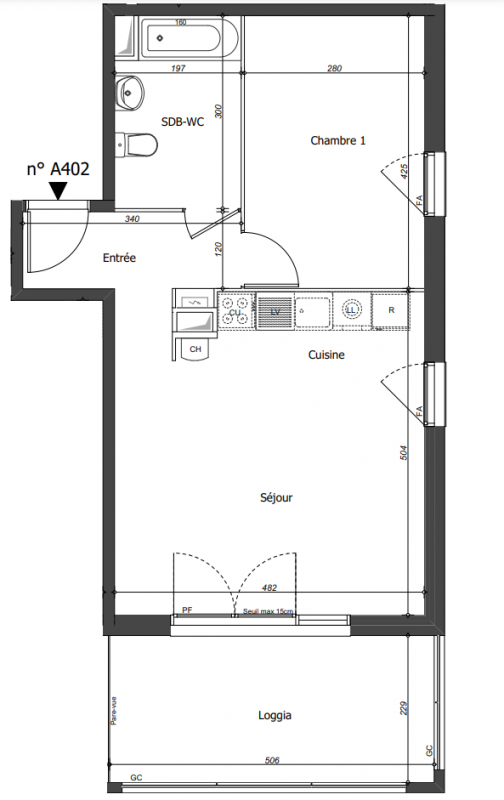
Appt. au 4ème
T2
45.24 m²
Sud-Ouest
Bourg-en-Bresse (01000)
3ème trimestre 2027
01 81 80 39 10
Présentation du programme "Programme neuf Bourg-en-Bresse (01000)"
Démarrage des travaux & baisse de prix sur nos appartements neufs du 2 au 4 pièces avec espace extérieur à BOURG-EN-BRESSE ! Devenez propriétaire pour le même prix que votre loyer grâce à la TVA réduite à 5,5%. La commune de Bourg-en-Bresse séduit par son cadre de vie privilégié, son patrimoine historique et sa proximité avec la métropole lyonnaise. Nichée entre ville et campagne, elle allie parfaitement dynamisme urbain et tranquillité naturelle.Notre nouvelle résidence propose des appartements du 2 au 4 pièces, tous dotés d’espaces extérieurs conçus pour prolonger l’espace de vie. Pensés pour offrir sécurité et confort, les logements bénéficient d’un parking en sous-sol et d’un local à vélos, répondant ainsi aux besoins quotidiens de praticité.À seulement 1 km* du centre-ville, notre emplacement offre une proximité immédiate avec tous les essentiels du quotidien : commerces, boulangeries, services, ainsi qu’un groupe scolaire situé à seulement 6 min* à pied. Entouré de vastes espaces naturels, la ville possède de nombreux parcs et jardin tels que le Parc de Bouvent, un lieu prisé pour la détente et les loisirs en plein air avec son lac, son golf et ses chemins de randonnée situé à 6min* en voiture. Bourg-en-Bresse profite d’une situation géographique stratégique. Proche des grands axes routiers, elle est desservie par l’autoroute A40, reliant Genève à Mâcon, et par l’A39 en direction de Dijon. La gare située à 6 min* en voiture, assure des liaisons fréquentes avec les grandes villes régionales, permettant de rejoindre Lyon en moins d'une heure. De plus, le réseau de bus local facilite les déplacements au sein de la ville, pour une mobilité sans contrainte.Contactez-vite un de nos experts pour concrétiser votre projet immobilier à BOURG-EN-BRESSE et profitez de la TVA réduite à 5,5% !
Autres logements T2 du programme "Programme neuf Bourg-en-Bresse (01000)"
| Disponibilité | Prix | No | Genre | Pièces | Surface | Étage | Disponibilité | Prix | ||
|---|---|---|---|---|---|---|---|---|---|---|
| Voir | Disponible | 175 300€ | A102 | Appt. | T2 | 45.24m2 | 1er | Disponible | 175 300€ | Voir |
| Voir | Disponible | 156 100€ | A301 | Appt. | T2 | 45.09m2 | 3ème | Disponible | 156 100€ | Voir |
| Voir | Disponible | 184 500€ | A302 | Appt. | T2 | 45.24m2 | 3ème | Disponible | 184 500€ | Voir |
| Voir | Disponible | 177 600€ | A401 | Appt. | T2 | 45.09m2 | 4ème | Disponible | 177 600€ | Voir |
| Voir | Disponible | 174 100€ | B405 | Appt. | T2 | 44.39m2 | 4ème | Disponible | 174 100€ | Voir |
| Voir | Disponible | 177 600€ | B303 | Appt. | T2 | 45.95m2 | 3ème | Disponible | 177 600€ | Voir |
| Voir | Disponible | 183 400€ | B403 | Appt. | T2 | 45.06m2 | 4ème | Disponible | 183 400€ | Voir |