177 300€
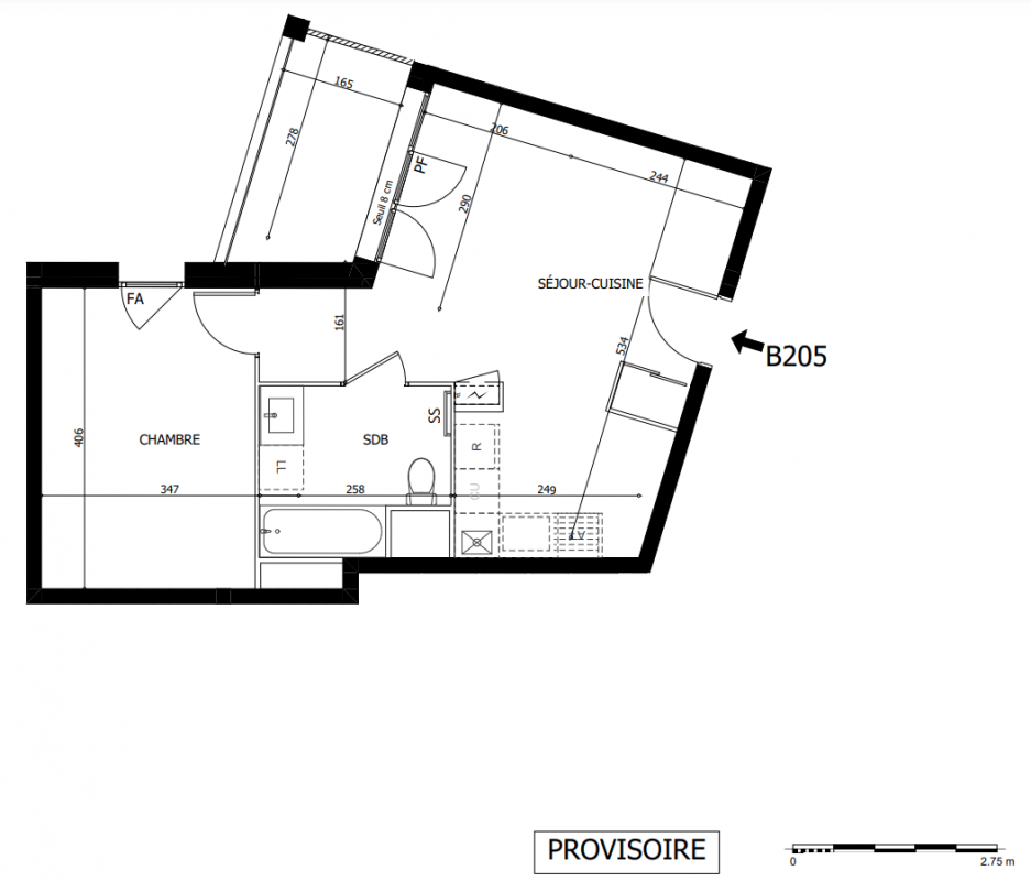
Appt. au 2ème
T2
41.22 m²
Ouest
Valence (26000)
1er trimestre 2028
01 81 80 39 10
Présentation du programme "Programme neuf Valence (26000)"
Baisse de prix & Démarrage des travaux à VALENCE ! Devenez propriétaire de votre appartement neuf pour le même prix que votre loyer grâce à la TVA réduite à 5,5%! Nichée au cœur de la vallée du Rhône, Valence est une ville à taille humaine qui offre une atmosphère conviviale, alliant dynamisme urbain et douceur de vivre provençale, tout en bénéficiant de la proximité avec les grandes métropoles. L'autoroute A7 permet de rejoindre Lyon en moins d'une heure, tandis que l'A9 et la Nationale 7 facilitent les déplacements vers les villes du sud. En termes de transports, la gare TGV située à seulement 6 minutes à pied* offre des liaisons directes vers les principales villes de France. Le réseau de bus Citéa permet quant à lui une circulation fluide à travers l’agglomération valentinoise et ses alentours.Idéalement situé, le centre-ville se trouve à seulement 6 minutes* en voiture de notre projet et bénéficie d’un emplacement stratégique avec un accès direct à tous les services essentiels : établissements scolaires (de l’élémentaire à l’université), commerces, restaurants..Notre résidence se compose d'appartements allant du 2 au 4 pièces et de 4 maisons 5 pièces. Tous les logements sont prolongés par un espace extérieur privatif et dotés d’un parking en sous-sol. Le cœur de notre projet : un magnifique îlot paysager, véritable havre de paix arboré, surmonté d'un cèdre centenaire, qui confère à notre résidence un caractère unique et authentique.Contactez vite un de nos conseillers pour découvrir tous nos appartements neufs et pour concrétiser votre projet immobilier à Valence
Autres logements T2 du programme "Programme neuf Valence (26000)"
| Disponibilité | Prix | No | Genre | Pièces | Surface | Étage | Disponibilité | Prix | ||
|---|---|---|---|---|---|---|---|---|---|---|
| Voir | Disponible | 186 600€ | A103 | Appt. | T2 | 40.12m2 | 1er | Disponible | 186 600€ | Voir |
| Voir | Disponible | 194 300€ | A201 | Appt. | T2 | 41.78m2 | 2ème | Disponible | 194 300€ | Voir |
| Voir | Disponible | 197 600€ | A202 | Appt. | T2 | 41.36m2 | 2ème | Disponible | 197 600€ | Voir |
| Voir | Disponible | 196 500€ | A203 | Appt. | T2 | 40.12m2 | 2ème | Disponible | 196 500€ | Voir |
| Voir | Disponible | 195 200€ | A204 | Appt. | T2 | 39.42m2 | 2ème | Disponible | 195 200€ | Voir |
| Voir | Disponible | 197 600€ | A301 | Appt. | T2 | 41.78m2 | 3ème | Disponible | 197 600€ | Voir |
| Voir | Disponible | 203 800€ | A401 | Appt. | T2 | 44.6m2 | 4ème | Disponible | 203 800€ | Voir |
| Voir | Disponible | 190 800€ | B203 | Appt. | T2 | 42.93m2 | 2ème | Disponible | 190 800€ | Voir |
| Voir | Disponible | 194 300€ | B303 | Appt. | T2 | 42.93m2 | 3ème | Disponible | 194 300€ | Voir |
| Voir | Disponible | 196 700€ | B305 | Appt. | T2 | 41.22m2 | 3ème | Disponible | 196 700€ | Voir |
| Voir | Disponible | 197 800€ | B403 | Appt. | T2 | 42.99m2 | 4ème | Disponible | 197 800€ | Voir |
| Voir | Disponible | 194 300€ | A102 | Appt. | T2 | 41.35m2 | 1er | Disponible | 194 300€ | Voir |