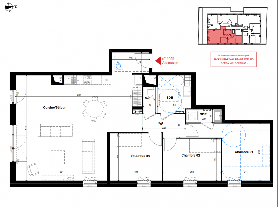
Prix
454 999€
Type
Appt. au 5ème
Pièces
T4
Surface
96 m²
Exposition
Sud-Est
Ville
Bourgoin-Jallieu (38300)
Livraison
4ème trimestre 2027
Informations
01 81 80 39 10

Présentation du programme "LE LYS"

AVANT-PREMIERE ! NOUVELLE RESIDENCE A BOURGOIN JALLIEU A découvrir en avant-première, notre nouvelle résidence neuve Nexity située à proximité immédiate du centre-ville de Bourgoin : LE LYS. Elle vous propose un emplacement de choix, proche du coeur de ville, permettant un accès facile aux commerces, écoles et autres commodités du quotidien. L'accès à la gare à moins de 10 min à pied vous permettra de rejoindre directement Lyon en train en 25 min. Renseignez-vous auprès de nos conseillers commerciaux pour découvrir et choisir en avant-première votre futur chez-vous parmi nos appartements du 2 au 4 pièces. Certification énergétique RE2020. Pour toutes informations complémentaires, prenez contact avec nous !

Autres logements T4 du programme "LE LYS"

Disponibilité Prix Genre Pièces Surface Étage
Voir
Disponible
322 000€ Appt. T4 83m2 2ème
DO NOT CLICK