193 000€
Appt. au 4ème
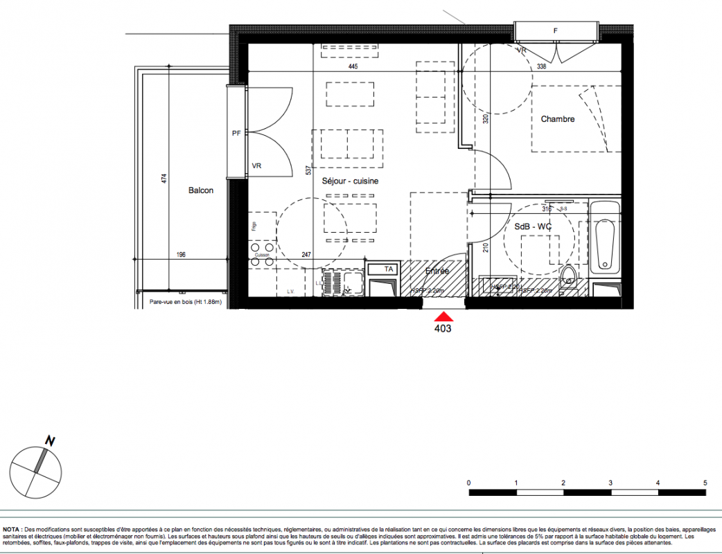
T2
41.19 m²
Est
Chamrousse (38410)
4ème trimestre 2027
01 81 80 39 10
Présentation du programme "Le Nouveau Chamrousse"
C’est à Recoin 1650 que les premiers essais du ski en France ont eu lieu et que naît la station en 1952. S’il s’agit d’une station pionnière à bien des égards (Chalet-Auberge construit en montagne en 1865, premiers skis utilisés en Montagne en 1878 et premier espace de ski alpin en 1893), la station prendra son véritable essor en accueillant les épreuves du ski alpin des Jeux Olympiques de Grenoble de 1968 avec la retranscription en direct à la télévision des exploits de Jean-Claude Killy triplement médaillé d’or. Située à seulement 30 km de Grenoble, Chamrousse offre aujourd’hui l’accès en haute montagne le plus proche d’un cœur urbain métropolitain, d’une agglomération de 700 000 habitants et de 70 000 entreprises. Chamrousse propose un large panel d’activités de plein air notamment la randonnée sur le Massif de Belledonne, le VTT ou l’escalade. Le Domaine alpin «Alpine Park» comprend plus de 90 km de pistes. Un espace glisse freestyle est également apprécié pour ses niveaux de difficultés variés. Le Domaine Nordique, dédié au ski de fond est quant à lui situé sur une zone naturelle boisée de 44 hectares.Votre future résidence sera composée de 30 logements déclinés du studio au 4 pièces en duplex terrasse. La plupart des appartements, conçus avec soin et élégance disposent de prestations intérieures de grande qualité, et bénéficient pour la plupart de larges espaces extérieurs avec vue panoramique sur la montagne afin d’offrir de précieux instants de détente. Pour plus de confort, un parking en sous-sol, un local à skis et à vélos seront également à votre disposition.
Autres logements T2 du programme "Le Nouveau Chamrousse"
| Disponibilité | Prix | No | Genre | Pièces | Surface | Étage | Disponibilité | Prix | ||
|---|---|---|---|---|---|---|---|---|---|---|
| Voir | Disponible | 188 000€ | 205 | Appt. | T2 | 42.29m2 | 2ème | Disponible | 188 000€ | Voir |
| Voir | Disponible | 192 000€ | 305 | Appt. | T2 | 42.29m2 | 3ème | Disponible | 192 000€ | Voir |
| Voir | Disponible | 207 030€ | 307 | Appt. | T2 | 44.59m2 | 3ème | Disponible | 207 030€ | Voir |
| Voir | Disponible | 175 750€ | 404 | Appt. | T2 | 40.12m2 | 4ème | Disponible | 175 750€ | Voir |
| Voir | Disponible | 196 000€ | 406 | Appt. | T2 | 42.29m2 | 4ème | Disponible | 196 000€ | Voir |
| Voir | Disponible | 190 000€ | 502 | Appt. | T2 | 40.26m2 | 5ème | Disponible | 190 000€ | Voir |