198 000€
Appt. au 2ème
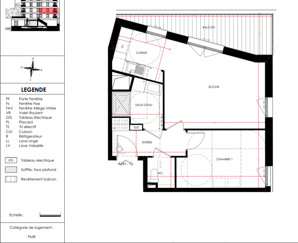
T2
46.23 m²
Nord-Est
Fontaine (38600)
4ème trimestre 2028
01 81 80 39 10
Présentation du programme "Sourcea"
La résidence Sourcea s’inscrit dans le quartier des Portes du Vercors, le long de la rue du Colonel Manhès. Elle se compose de deux bâtiments collectifs en R 5 et de logements intermédiaires en R 2 à R 3, avec une architecture contemporaine, sobre et élégante. Elle propose 36 logements en accession libre, du 2 au 5 pièces. Les appartements bénéficient de volumes généreux, d’une double orientation ou d’une configuration traversante et d’espaces extérieurs variés. Le cœur d’îlot végétalisé, pensé comme un jardin partagé, offre un lien direct avec la nature.Quartier jardin au cœur de Fontaine, avec vues sur les massifs environnants Appartements lumineux, traversants ou bi-orientés Jardin partagé avec bacs potagers, assises ombragées et noue paysagère Espaces extérieurs variés : balcons, terrasses, jardins privatifs Architecture bioclimatique et matériaux durablesAppartements : Typologies du 2 au 5 pièces Cuisine et séjour formant un espace de vie principal spacieux Isolation phonique renforcéeChauffage par géothermie Celliers pratiques en rez-de-chaussée Parking en sous-sol Grand local vélos Espaces extérieurs : Jardin partagé avec bacs potagers et mobilier convivial Noue paysagère pour la gestion des eaux pluviales Végétalisation abondante avec essences locales et non allergisantes Toitures végétalisées et panneaux photovoltaïquesÀ proximité de la résidence à pied : Arrêt de bus « Gérard Philipe » à 210 m Tram A à 650 m (arrêt Charles Michels) Pôle multimodal « La Poya » à 700 m Commerces, supermarché, cinéma et restaurants accessibles à pied Établissements scolaires à distance piétonne En train : Gare de Grenoble à 4,3 km Lyon Part-Dieu en 1h23 Paris Gare de Lyon en 3h34 via Valence TGV En voiture : Grenoble à 3 km Lyon à 110 km Genève à 155 km
Autres logements T2 du programme "Sourcea"
| Disponibilité | Prix | No | Genre | Pièces | Surface | Étage | Disponibilité | Prix | ||
|---|---|---|---|---|---|---|---|---|---|---|
| Voir | Disponible | 177 000€ | A101 | Appt. | T2 | 46.23m2 | 1er | Disponible | 177 000€ | Voir |
| Voir | Disponible | 190 000€ | A102 | Appt. | T2 | 50.32m2 | 1er | Disponible | 190 000€ | Voir |
| Voir | Disponible | 166 000€ | A103 | Appt. | T2 | 43.1m2 | 1er | Disponible | 166 000€ | Voir |
| Voir | Disponible | 189 000€ | A203 | Appt. | T2 | 43.1m2 | 2ème | Disponible | 189 000€ | Voir |
| Voir | Disponible | 175 000€ | A001 | Appt. | T2 | 46.96m2 Le bon plan | 0-RDC | Disponible | 175 000€ | Voir |