Ce lot n’est plus disponible chez VIANOVA ou est vendu.
Vous pouvez revenir dans 24h pour vérifier le stock à jour ou contacter un conseiller Vianova pour vérifier le stock en direct.
Vous pouvez également continuer votre recherche sur notre site « ici ».
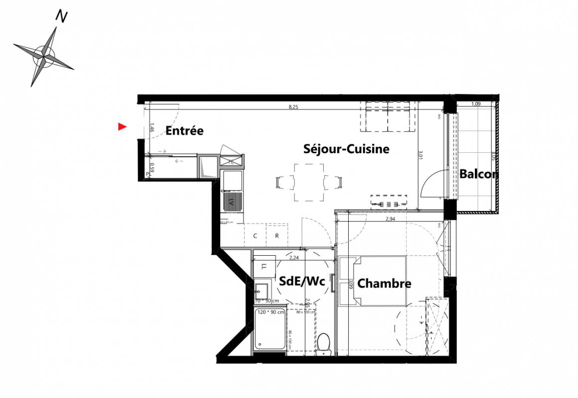
294 000€
Appt. au 1er
T2
44.01 m²
Est
La Tour-de-Salvagny (69890)
3ème trimestre 2026
01 81 80 39 10
Présentation du programme "L'EVEIL"
Chape flottante acoustique
Parquet dans les entrées, séjours, dégagements et chambres
Terrasse, balcons et loggia revêtues de bois
Salle de bains ou salle d’eau principale et salle d’eau secondaire équipées d’un meuble vasque surmonté d’un miroir et d’un bandeau lumineux
Faïence et carrelage dans les pièces d’eau
Sèche-serviettes dans les salles de bains et salles d’eau
Chauffage (piloté par thermostat d’ambiance) et eau chaude par système de Pompe à Chaleur collective
Baies vitrées en bois Brise soleil orientable motorisé par télécommande sur l’ensemble des baies
Robinetterie thermostatique sur baignoire et douche
Hall d’entrée sécurisé par système Vigik®, digicode et système de visiophonie
Porte palière avec serrure de sûreté 5 points certifiée A2P1
Emplacement privatif dans le parking sécurisé en sous-sol
Locaux à vélos équipés, fermés à clef
Panneaux photovoltaïques permettant de couvrir une partie de la consommation électrique des parties communes de l’immeuble.