Prix
505 000€
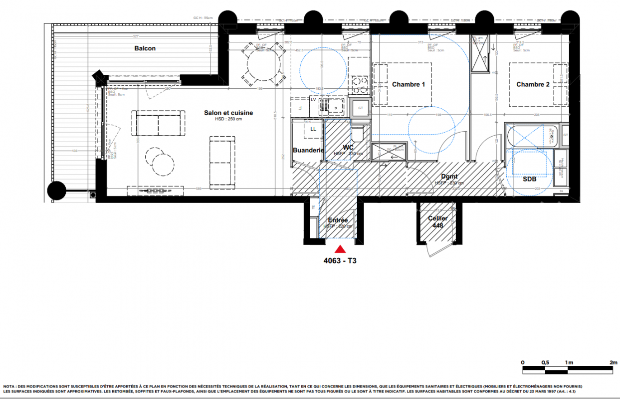
Type
Appt. au 12ème
Pièces
T3
Surface
70 m²
Exposition
Sud-Ouest
Ville
Lyon 1er (69001)
Livraison
1er trimestre 2026
Informations
01 81 80 39 10

Présentation du programme "HOST - hors des Standards"

Une collection d'appartement de haut-standing au coeur de Lyon Confluence Nexity vous propose en exclusivité leur nouvelle collection d'appartements au coeur de l'un des quartiers les plus exemplaires en terme écologique de France. Prenez de la hauteur; vues sur la ville et logements bénéficiant de doubles hauteurs vous ouvriront les perspectives. Les prestations sont à choisir dans notre showroom au sein de notre gamme premium : carrelage grand format, parquet, menuiseries bois, fermetures avec Brises Soleil Orientables et surtout RE2020 Accompagnement dédié, logements de grande qualité, performances énergétiques exemplaires vous sont assurés en devenant propriétaire de ces quelques biens. Contactez-nous afin d'être les premiers à les découvrir.

Autres logements T3 du programme "HOST - hors des Standards"

Disponibilité Prix Genre Pièces Surface Étage
Voir
Disponible
475 000€ Appt. T3 70m2 6ème
DO NOT CLICK