31 252€
- €
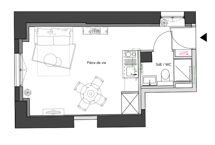
Appt. au 0-RDC
Studio
23.99 m²
Sud-Ouest
Tassin-la-Demi-Lune (69160)
1er trimestre 2024
01 81 80 39 10
Présentation du programme "Villa Astra"
Un Astre aux portes de la Métropole.Située aux frontières de Lyon, Tassin-la-Demi-Lune profite d’une position stratégique et d’un dense réseau de transports en commun pour graviter aisément sur tout le territoire. Véritable ville à la campagne, la commune a vu fleurir, au long de sa mutation urbaine et démographique, de nombreux espaces verts remarquables comme le Parc de l’Orangerie où ont été préservés de nombreux arbres centenaires. 22 297 habitants • 1 500 entreprises.2 fleurs au concours national des Villes Fleuries.DES INFRASTRUCTURES DE LOISIRS. Complexe Intercommunal Aquavert, 2 stades et 2 gymnases. 1 cinéma : le Lem1, espace culturel : l’Atrium.Dans le quartier de Montpinot Le Bourg, la résidence Villa Astra profite d’un emplacement de choix à seulement quelques minutes à pied des lieux d’intérêts et des services essentiels au quotidien.Au-delà d’un cadre de vie doux et arboré, les tassilunois profitent de nombreuses écoles et infrastructures qui témoignent du dynamisme de la ville tels que le Campus Région du numérique ou encore l’Institut Paul Bocuse. Au nord de Tassin, la résidence Villa Astra offre une composition moderne, élaborée autour de plusieurs volumes enchevêtrés les uns aux autres pour créer un ensemble original, intimiste et harmonieux. Le bâti a été réhabilité selon les codes de l’architecture existante pour conserver le charme du lieu et permettre à la résidence de s’inscrire tout naturellement dans son environnement. 23 LOGEMENTS DU STUDIO AU 2 PIÈCES DUPLEX L’extérieur de la résidence a été restauré de manière à préserver toute son authenticité. Les façades se parent de teintes claires et chaleureuses, les menuiseries sont remplacées. Tout autour, la végétation se fait omniprésente : le terrain est ainsi constellé d’arbres aux feuillages denses pour abriter les voitures en stationnement et offrir un cadre de vie doux aux futurs résidents. Les logements de la résidence Villa Astra ont été totalement remis à neuf pour être source de bien-être et de confort pour chacun des résidents. Les matériaux ont ainsi été sélectionnés pour leur robustesse et leur capacité à offrir de nombreuses possibilités en termes de décoration et d’aménagement. Chaque pièce a été optimisée et agencée de manière à favoriser l’entrée de lumière naturelle et offrir des espaces généreux, empreints de vie et de sérénité.