699 000€
Appt. au 1er
T4
89.5 m²
Sud-Ouest
Notre-Dame-de-Bellecombe (73590)
1er trimestre 2028
01 81 80 39 10
Présentation du programme "Les Chalets Bajja"
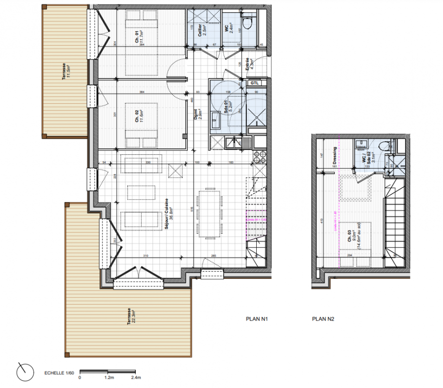
La résidence Les Chalets Bajja se compose de 25 logements répartis en trois entités :Un bâtiment collectif (A) de 23 appartements du 2 au 4 piècesDeux chalets individuels (B et C)L’architecture s’inspire des codes traditionnels des chalets d’alpage : bardage bois, toitures gris ardoise, soubassements sur pilotis.Les intérieurs offrent des volumes généreux (hauteur sous plafond min. 2,50 m) et sont prolongés par de vastes balcons ou terrasses pour profiter pleinement du panorama alpin.La construction respecte la RT 2012, la réglementation acoustique et PMR.Emplacement premium : à 700 m du téléski du Reguet, au pied des pistes et proche des commercesRésidence intimiste : seulement 25 logementsBalcons et terrasses spacieux avec platelage boisArchitecture authentique et contemporaineStationnement en sous-sol, caves privatives, casiers à ski, local vélosParties privatives :Revêtements sols : carrelage grand format (Novoceram ou Porcelanosa) dans pièces de vie, parquet contrecollé bois dans chambresMurs et plafonds : peinture satinée claire, un mur séjour habillé boisSalle de bains : meuble vasque avec miroir et LED, faïence toute hauteur, baignoire ou douche avec pare-douche, sèche-serviette électriqueMenuiseries extérieures : bois avec double vitrage, volets roulants motorisés ou battants boisTerrasses et balcons : platelage bois vissé sur lambourdesPortes palières : blindées anti-effraction, serrure 3 points A2PParties communes :Hall décoratif avec carrelage 60x60, faux plafond acoustiqueContrôle d’accès Vigik vidéophone (Bâtiment A)Ascenseur 630 kg dans Bâtiment ATechniques :Chauffage par pompe à chaleur (PAC) : collectif pour Bâtiment A, individuel pour B et CProduction ECS : système mixte PAC chaudière gaz ou ballons individuelsVMC hygroréglableÀ proximité immédiate :Téléski du Reguet : 700 mCommerces, restaurants, marché local : 500 mDomaine skiable : Espace Diamant (192 km de pistes)Accès :En voiture : D1212 (3 km), A43 (45 km)En train : Annecy à 54 km
Autres logements T4 du programme "Les Chalets Bajja"
| Disponibilité | Prix | No | Genre | Pièces | Surface | Étage | Disponibilité | Prix | ||
|---|---|---|---|---|---|---|---|---|---|---|
| Voir | Disponible | 745 000€ | A101 | Appt. | T4 | 97.7m2 | 1er | Disponible | 745 000€ | Voir |
| Voir | Disponible | 815 000€ | A105 | Appt. | T4 | 105.1m2 | 1er | Disponible | 815 000€ | Voir |
| Voir | Disponible | 805 000€ | A201 | Appt. | T4 | 100.6m2 | 2ème | Disponible | 805 000€ | Voir |
| Voir | Disponible | 718 000€ | A207 | Appt. | T4 | 94.4m2 | 2ème | Disponible | 718 000€ | Voir |