174 800€
Appt. au 2ème
T2
40.75 m²
Sud
Ugine (73400)
3ème trimestre 2027
01 81 80 39 10
Présentation du programme "Programme neuf Ugine (73400)"
NOUVEAU à UGINE ! Soyez parmi les premiers à choisir votre appartement neuf du 2 au 4 pièces avec extérieur et parking !Niché au cœur du département de la Savoie, entre montagnes et nature préservée, Ugine séduit par son cadre de vie exceptionnel. Cette charmante commune à taille humaine allie parfaitement authenticité savoyarde et dynamisme moderne, offrant une qualité de vie incomparable à seulement 20 min* en voiture du splendide lac d’Annecy.Profitant d’un emplacement stratégique à proximité des commerces et services essentiels, la ville offre un accès facile à une supérette, des marchés locaux, des restaurants, des pharmacies et un bureau de poste, tous accessibles en quelques minutes à pied ou à vélo. Les familles apprécieront la présence d’établissements scolaires allant de la maternelle au lycée, situés à seulement 2 min* en voiture.Grâce à un environnement propice aux activités en plein air, les loisirs s’intègrent naturellement au quotidien avec notamment la station de ski Crest-Voland située à 22 min* en voiture. La ville vibre également au rythme d’événements culturels et sportifs, renforçant son atmosphère chaleureuse tout au long de l’année.Stratégiquement située, Ugine bénéficie d’une connexion rapide avec l’autoroute A430, permettant de rejoindre facilement Annecy, Chambéry et Albertville. La proximité avec les grands axes routiers facilite l’accès aux communes d’Albertville et Faverges, accessibles en 10 et 14 min*. Les réseaux de bus départementaux offrent des liaisons régulières vers les communes environnantes, facilitant ainsi vos déplacements quotidiens.Découvrez notre nouvelle résidence située dans les hauteurs d’Ugine, composée d’appartements allant du 2 au 4 pièces. Tous les logements disposent d’un espace extérieur pour profiter de l’ensoleillement et des vues dégagées sur les montagnes environnantes. Pour assurer confort et sécurité, un parking sécurisé ainsi qu’un local à vélos sont disponibles.Contactez-vite un de nos conseillers pour concrétiser votre projet immobilier neuf à UGINE !
Autres logements T2 du programme "Programme neuf Ugine (73400)"
| Disponibilité | Prix | No | Genre | Pièces | Surface | Étage | Disponibilité | Prix | ||
|---|---|---|---|---|---|---|---|---|---|---|
| Voir | Disponible | 156 800€ | A202 | Appt. | T2 | 40.4m2 | 2ème | Disponible | 156 800€ | Voir |
| Voir | Disponible | 162 900€ | A205 | Appt. | T2 | 40.7m2 | 2ème | Disponible | 162 900€ | Voir |
| Voir | Disponible | 160 900€ | A302 | Appt. | T2 | 40.4m2 | 3ème | Disponible | 160 900€ | Voir |
| Voir | Disponible | 162 000€ | A303 | Appt. | T2 | 40.9m2 | 3ème | Disponible | 162 000€ | Voir |
| Voir | Disponible | 169 600€ | A305 | Appt. | T2 | 40.7m2 | 3ème | Disponible | 169 600€ | Voir |
| Voir | Disponible | 167 500€ | A402 | Appt. | T2 | 40.4m2 | 4ème | Disponible | 167 500€ | Voir |
| Voir | Disponible | 172 700€ | A405 | Appt. | T2 | 40.7m2 | 4ème | Disponible | 172 700€ | Voir |
| Voir | Disponible | 173 700€ | B102 | Appt. | T2 | 41.55m2 | 1er | Disponible | 173 700€ | Voir |
| Voir | Disponible | 160 900€ | B105 | Appt. | T2 | 41.45m2 | 1er | Disponible | 160 900€ | Voir |
| Voir | Disponible | 181 000€ | B203 | Appt. | T2 | 43.25m2 | 2ème | Disponible | 181 000€ | Voir |
| Voir | Disponible | 167 500€ | B205 | Appt. | T2 | 41.45m2 | 2ème | Disponible | 167 500€ | Voir |
| Voir | Disponible | 180 000€ | B302 | Appt. | T2 | 41.55m2 | 3ème | Disponible | 180 000€ | Voir |
| Voir | Disponible | 184 100€ | B303 | Appt. | T2 | 43.25m2 | 3ème | Disponible | 184 100€ | Voir |
| Voir | Disponible | 169 600€ | B305 | Appt. | T2 | 41.45m2 | 3ème | Disponible | 169 600€ | Voir |
| Voir | Disponible | 196 600€ | C003 | Appt. | T2 | 46.95m2 | 0-RDC | Disponible | 196 600€ | Voir |
| Voir | Disponible | 158 900€ | C104 | Appt. | T2 | 40.15m2 | 1er | Disponible | 158 900€ | Voir |
| Voir | Disponible | 170 600€ | C106 | Appt. | T2 | 40.6m2 | 1er | Disponible | 170 600€ | Voir |
| Voir | Disponible | 162 000€ | C204 | Appt. | T2 | 40.15m2 | 2ème | Disponible | 162 000€ | Voir |
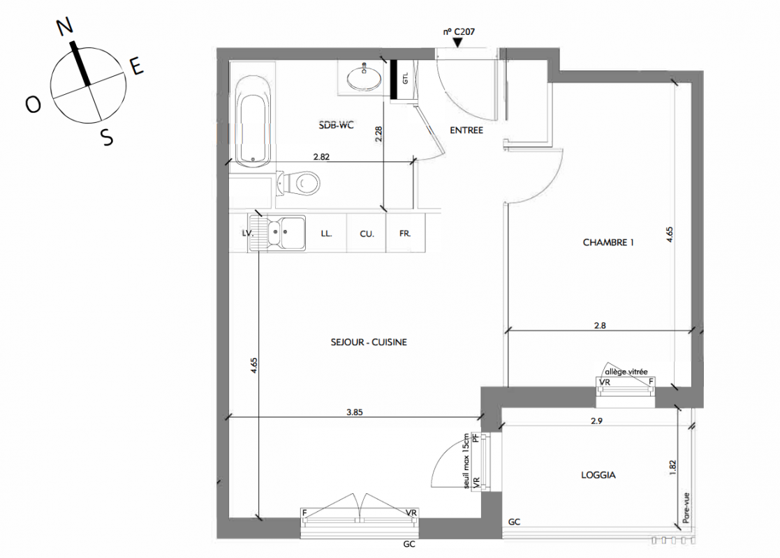
| Voir | Disponible | 174 800€ | C206 | Appt. | T2 | 40.6m2 | 2ème | Disponible | 174 800€ | Voir |
| Voir | Disponible | 168 500€ | C304 | Appt. | T2 | 40.15m2 | 3ème | Disponible | 168 500€ | Voir |
| Voir | Disponible | 177 900€ | C306 | Appt. | T2 | 40.6m2 | 3ème | Disponible | 177 900€ | Voir |
| Voir | Disponible | 162 300€ | A203 | Appt. | T2 | 40.9m2 | 2ème | Disponible | 162 300€ | Voir |