Prix
305 000€  (TVA 20%)
268 146€  (TVA 5.5%)
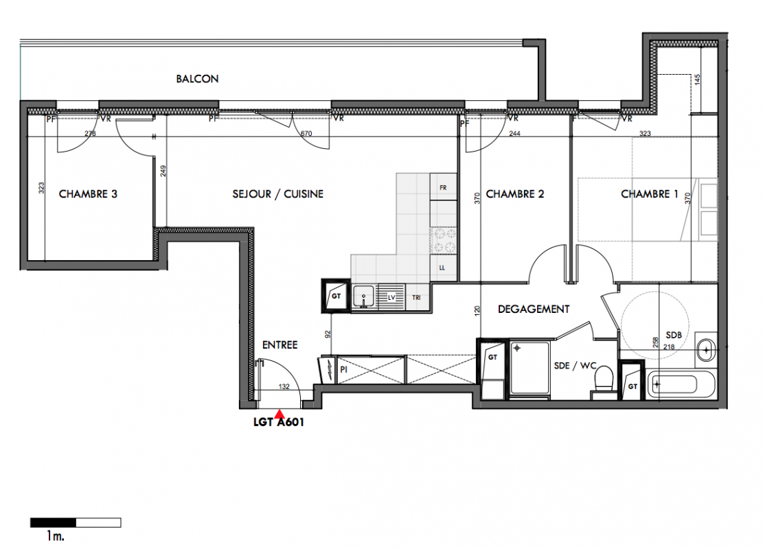
Type
Appt. au 0-RDC
Pièces
T4
Surface
76.88 m²
Exposition
Nord
Ville
Dijon (21000)
Livraison
2ème trimestre 2025
Informations
01 81 80 39 10

Présentation du programme "Philharmonia"

Découvrez notre programme immobilier neuf Philharmonia, une résidence reliée au cœur de la ville, située à proximité du quartier culturel de l'Auditorium et du quartier résidentiel de Montmuzard, ainsi que de l'université de Dijon. Philharmonia propose des appartements neufs accessibles et personnalisables, allant de 2 pièces à 4 pièces, à proximité de commerces et du tram.

Chaque logement, ouvert sur l'extérieur et baigné de lumière, dispose de balcons ou de terrasses privés. De plus, une place de parking sécurisée est prévue au sein d'une résidence à l'architecture contemporaine, aux lignes épurées et délicates, créant une atmosphère d'intimité et de sérénité en plein cœur de la ville. Les résidents pourront également profiter d'un jardin intérieur orienté plein Sud, aménagé avec des espaces boisés naturels.

Autres logements T4 du programme "Philharmonia"

Pas de logements disponibles
DO NOT CLICK