Prix
699 000€
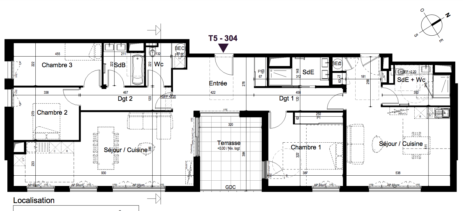
Type
Appt. au 3ème
Pièces
T5
Surface
134.4 m²
Exposition
Est
Ville
Pléneuf-Val-André (22370)
Livraison
1er trimestre 2025
Informations
01 81 80 39 10

Présentation du programme "LA FLOTTILLE"

Profitez d’un grand bol d’air en bord de mer dans votre nouvelle résidence LA FLOTTILLE. Idéalement située à PLENEUF-VAL-ANDRE, découvrez LA FLOTTILLE, votre nouvelle résidence de standing à proximité immédiate du Port de Dahouët. Ce quartier historique de PLENEUF-VAL-ANDRE propose l’accès à des commerces de proximité et un marché alimentaire animé tous les week-ends.

Autres logements T5 du programme "LA FLOTTILLE"

Disponibilité Prix Genre Pièces Surface Étage
Voir
Disponible
705 000€ Appt. T5 136.4m2 3ème
DO NOT CLICK