330 000€
Appt. au 2ème
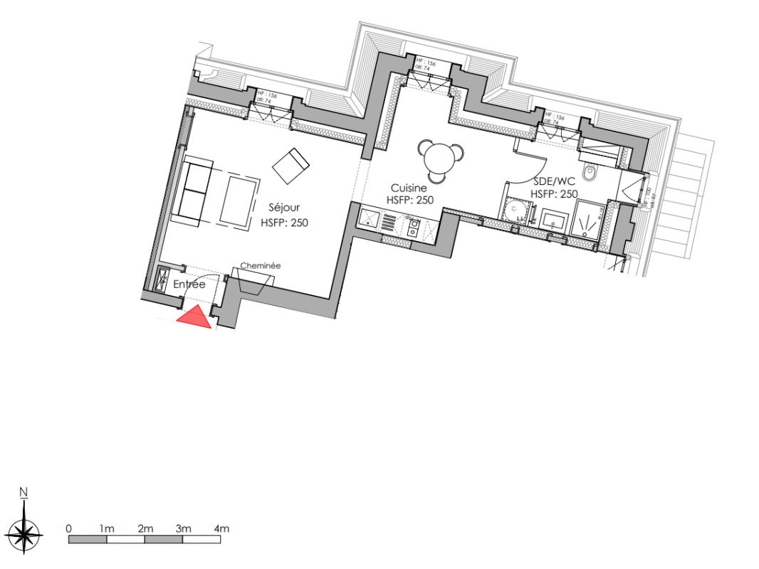
Studio
36 m²
-
Mordelles (35310)
2ème trimestre 2029
01 81 80 39 10
Présentation du programme " CHÂTEAU TOULOUSE-LAUTREC "
Situéé à 14km au sud-ouest de Rennes, Mordelles fait partie des communes les plus recherchées de la courronne Rennes métropole.Le Château TOULOUSE-LAUTREC, édifié en 1888 par l'architecte Ambroise Baudry et construit pour le comte Odon de Toulouse Lautrec, oncle du peintre Henri de Toulouse-Lautrec est classé Monument Historique et constitue l'un des Joyaux Patrimoniaux de Bretagne.Niché dans un écrin de verdure au coeur d'un parc à l'Anglaise également inscrit aux Monuments Historiques, le château et ses communs seront entièrement réhabilités avec une attention minutieuse portée à chaque détail patrimonial.Son parc sera retrocédé à la municipalité de Mordelles et transformé en parc public ouvert aux habitants.Un cadre d'exception à deux pas du centre ville et de ses commodités :
Commerces & services : 5min à pied
Buse vers Rennes : 5 minutes en voiture
Ecoles & Collèges: 10-12min à pied
Aéropirt de Rennes : 14 min en voiture
Rennes : 20min en voiture
Ce programme est éligible au dispositifs MH & DF, ci-dessous les modalités des ADF :
3 ADF (35/35/30)
ou 4 ADF (35/25/25/15)
Autres logements Studio du programme " CHÂTEAU TOULOUSE-LAUTREC "
| Disponibilité | Prix | No | Genre | Pièces | Surface | Étage | Disponibilité | Prix | ||
|---|---|---|---|---|---|---|---|---|---|---|
| Voir | Optionné | 327 000€ | A02 | Appt. | Studio | 34m2 | 0-RDC | Optionné Mais pas encore vendu 😉 | 327 000€ | Voir |
| Voir | Disponible | 213 000€ | A05 | Appt. | Studio | 21m2 | 0-RDC | Disponible | 213 000€ | Voir |
| Voir | Disponible | 291 000€ | A12 | Appt. | Studio | 30m2 | 2ème | Disponible | 291 000€ | Voir |
| Voir | Disponible | 281 000€ | A14 | Appt. | Studio | 29m2 | 2ème | Disponible | 281 000€ | Voir |
| Voir | Optionné | 248 000€ | B02 | Appt. | Studio | 25.5m2 | 0-RDC | Optionné Mais pas encore vendu 😉 | 248 000€ | Voir |
| Voir | Disponible | 194 000€ | B07 | Appt. | Studio | 19m2 | 1er | Disponible | 194 000€ | Voir |