Prix
179 000€
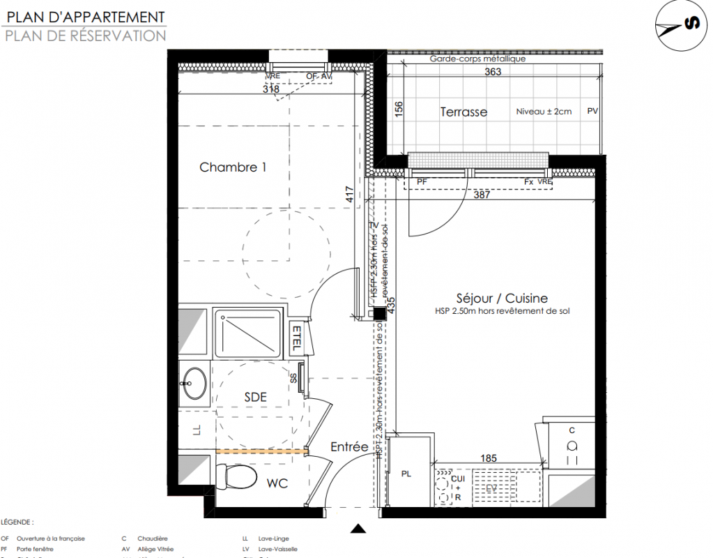
Type
Appt. au 0-RDC
Pièces
T2
Surface
42.75 m²
Exposition
-
Ville
Noyal-sur-Vilaine (35530)
Livraison
1er trimestre 2027
Informations
01 81 80 39 10

Présentation du programme "TEMPO"

[ - TRAVAUX EN COURS - ] Découvrez les appartements neufs de la résidence TEMPO à NOYAL SUR VILAINE, du 2 au 4 pièces. Profitez du PRET à TAUX ZERO** !

Située aux portes de Rennes, la résidence TEMPO s’installe dans un quartier paisible de Noyal-sur-Vilaine, à proximité immédiate des commodités, services, écoles et commerces. Cette commune dynamique allie qualité de vie, atmosphère conviviale et accès facile à la métropole.

Le jeu de volumes des façades de la résidence offre de multiples expositions et compose un espace extérieur à chaque appartement : lumière naturelle s'y invite généreusement à tout heure du jour. Le cœur d'îlot agréablement arboré apporte également une douce sensation d'intimité, de calme et de confort.

Contactez nos conseillers Lamotte à RENNES, ou rendez-vous sur notre site Vianova.fr, pour en savoir plus et profiter de cette opportunité d'investissement !

** Prêt à Taux Zéro émis à partir du 1er avril 2024 pour l’acquisition de sa résidence principale neuve en tant que primo-accédant. Sous réserve de respecter les conditions fixées aux articles D. 31-10-2 et D. 31-10-10 du code de la construction et de l'habitation et les conditions d’application du PTZ de la loi de finances pour 2024 (art. 71) prolongée jusqu’au 31 décembre 2027. Sous réserve d’acceptation du dossier par l’établissement bancaire.

Autres logements T2 du programme "TEMPO"

Disponibilité Prix Genre Pièces Surface Étage
Voir
Disponible
176 500€ Appt. T2 42.55m2 0-RDC
DO NOT CLICK