Prix
260 681€
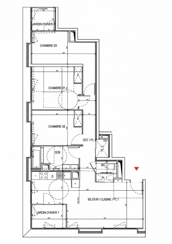
Type
Appt. au 13ème
Pièces
T4
Surface
86.8 m²
Exposition
Sud-Ouest
Ville
Rennes (35000)
Livraison
1er trimestre 2026
Informations
01 81 80 39 10

Présentation du programme "Perspectives"

Tradition et modernité

La capitale du Duché de Bretagne possède à jamais une aura remarquable. Prisée pour la richesse de son patrimoine et sa grande qualité de vie, Rennes évolue décomplexée dans la modernité. À seulement 45 min de la Côte d’Émeraude net 2h de Paris, Rennes s’affirme comme le moteur de l’économie régionale. Dynamique et culturelle, elle s’impose parmi les premières villes étudiantes et ne cesse d’attirer des actifs en quête de douceur de vivre.

Autres logements T4 du programme "Perspectives"

Disponibilité Prix Genre Pièces Surface Étage
Voir
Disponible
262 499€ Appt. T4 82.98m2 16ème
DO NOT CLICK