209 000€
Appt. au 1er
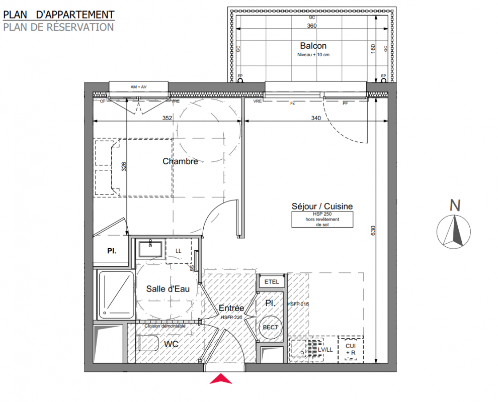
T2
41.36 m²
-
Séné (56860)
3ème trimestre 2028
01 81 80 39 10
Présentation du programme "ÉCHO"
[ - LANCEMENT COMMERCIAL - ] Événement de lancement les 29 et 30 mai !
Rendez-vous au centre-commercial Les Trois Soleils à Plescop pour découvrir nos deux nouvelles adresses à Séné et Plescop.
À Séné, une résidence d'appartements neufs s’implante route du Versa, au sein d’un environnement résidentiel déjà aménagé. Cette adresse bénéficie d’une situation pratique, à proximité immédiate de la zone commerciale du Poulfanc, d’écoles et des transports en commun, avec une ligne de bus accessible à quelques minutes à pied reliant le centre de Vannes en environ 15 minutes. La gare de Vannes se situe à une dizaine de minutes en voiture, tandis que les axes routiers permettent un accès rapide vers Rennes, Nantes, Lorient et Quimper.
La résidence ÉCHO se compose d’un petit collectif de seulement 23 appartements du 2 au 4 pièces, répartis dans un bâtiment à taille humaine, en cohérence avec le quartier environnant.
Chaque logement bénéficie d’un espace extérieur privatif – jardin, balcon, loggia ou terrasse – prolongeant les espaces de vie. L’architecture contemporaine associe des enduits clairs, des garde-corps en bois, des menuiseries gris anthracite, apportant une écriture sobre et qualitative à l’ensemble.
Les prestations intérieures offrent un niveau de confort et de fonctionnalité adapté aux usages actuels.
INVESTIR OU DEVENIR PROPRIETAIRE : PROFITEZ DES AVANTAGES !
Ce programme immobilier est éligible à la loi “Jeanbrun” et au Prêt à Taux Zéro (PTZ). Les conseillers Lamotte sont à votre disposition pour réaliser une étude fiscale personnalisée pour vous accompagner dans la création et l’optimisation de votre patrimoine, mais aussi pour étudier les meilleures solutions de financement qui s’offrent à vous pour votre résidence principale.
Choisir le neuf, c’est profiter de frais de notaire réduits. Un avantage supplémentaire dans le cadre d'une acquisition en résidence principale comme pour un investissement patrimonial.
Contactez nos conseillers Lamotte à Vannes ou rendez-vous sur lamotte.fr pour en savoir plus.
*Voir conditions de l'offre sur notre site Lamotte.fr
Autres logements T2 du programme "ÉCHO"
| Disponibilité | Prix | No | Genre | Pièces | Surface | Étage | Disponibilité | Prix | ||
|---|---|---|---|---|---|---|---|---|---|---|
| Voir | Disponible | 205 000€ | B006 | Appt. | T2 | 41.65m2 | 0-RDC | Disponible | 205 000€ | Voir |
| Voir | Disponible | 217 000€ | B007 | Appt. | T2 | 42.48m2 | 0-RDC | Disponible | 217 000€ | Voir |
| Voir | Optionné | 220 000€ | B101 | Appt. | T2 | 40.09m2 | 1er | Optionné Mais pas encore vendu 😉 | 220 000€ | Voir |