Ce lot n’est plus disponible chez VIANOVA ou est vendu.

Vous pouvez revenir dans 24h pour vérifier le stock à jour ou contacter un conseiller Vianova pour vérifier le stock en direct.
Vous pouvez également continuer votre recherche sur notre site « ici ».

Prix
185 000€
Type
Appt. au 0-RDC
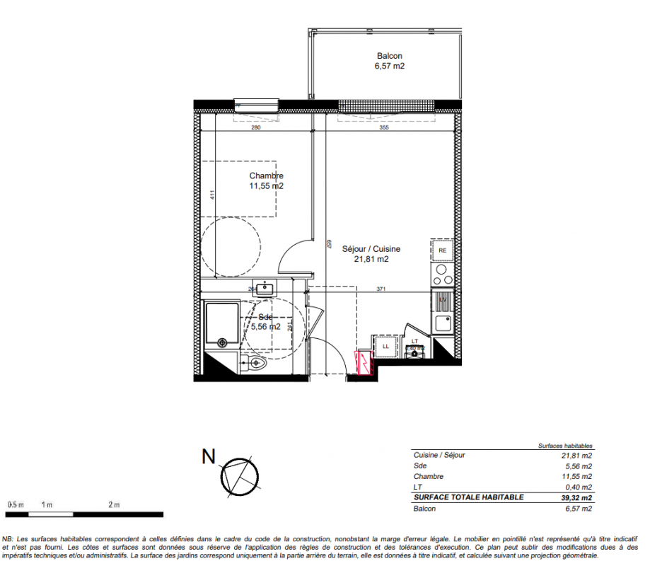
Pièces
T2
Surface
42.6 m²
Exposition
Nord-Est
Ville
Chartres (28000)
Livraison
1er trimestre 2026
Informations
01 81 80 39 10

Présentation du programme "SEQUOIA PARK"

Une métropole ambitieuse Un territoire en perpétuel mouvement Un paysage aussi urbain que bucolique Un cadre de vie prospère et apaisant

Autres logements T2 du programme "SEQUOIA PARK"

Pas de logements disponibles
DO NOT CLICK