Prix
475 000€
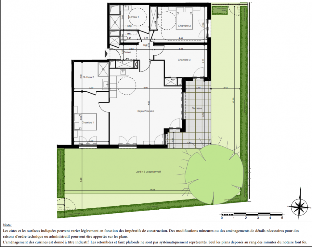
Type
Appt. au 0-RDC
Pièces
T4
Surface
94.45 m²
Exposition
-
Ville
Saint-Cyr-sur-Loire (37540)
Livraison
2ème trimestre 2025
Informations
01 81 80 39 10

Présentation du programme "HERITAGE"

TAUX DE COMMISSION : 6%HT

Autres logements T4 du programme "HERITAGE"

Disponibilité Prix Genre Pièces Surface Étage
Voir
Disponible
575 000€ Appt. T4 111.19m2 0-RDC
DO NOT CLICK