51 600€
440 100€
- €
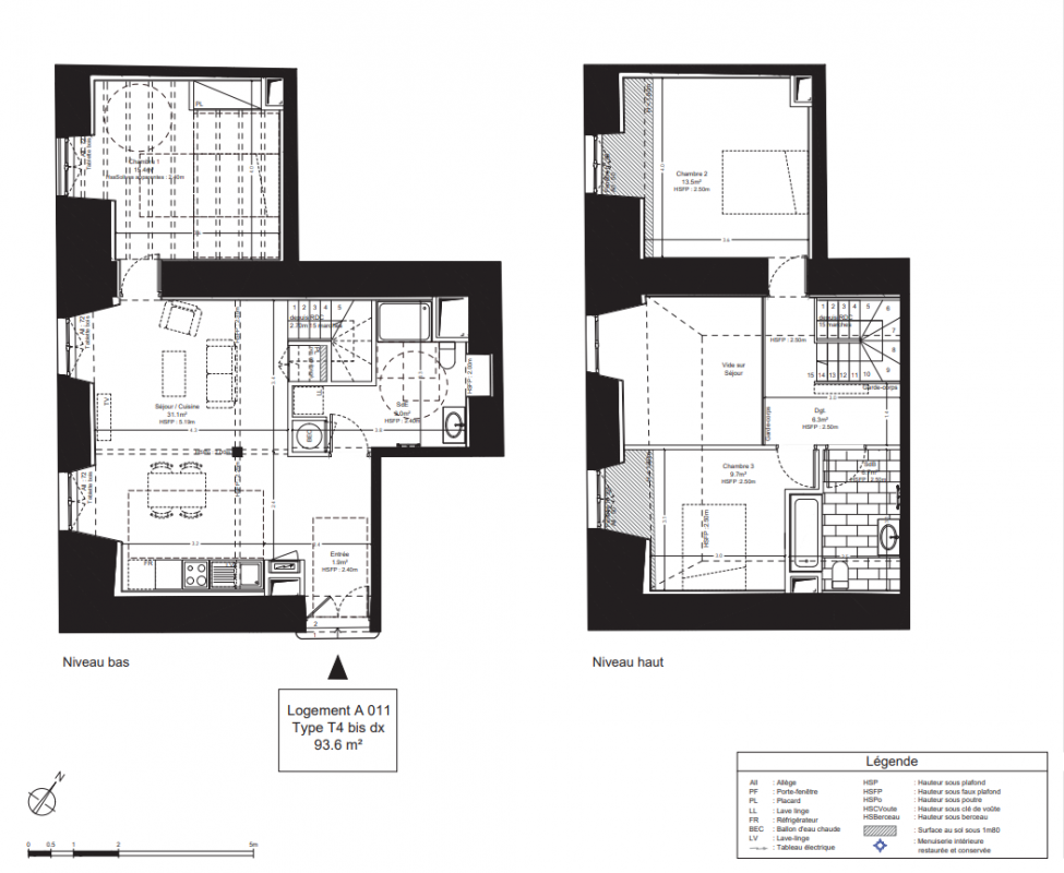
Type
Appt. au 0-RDC
Pièces
T4
Surface
93.6 m²
Le bon plan
Exposition
-
Ville
Blois (41000)
Livraison
4ème trimestre 2027
Informations
01 81 80 39 10

Présentation du programme "HOTEL DIEU"

À Blois, l’Hôtel-Dieu du XIIIe siècle, a su au fil des années garder son élégance architecturale. Afin de sauvegarder ce joyau du patrimoine français, Histoire & Patrimoine réhabilite ce magnifique site et va y aménager 97 logements.

Éligible aux dispositifs fiscaux Monument Historique et Malraux, investir à l’Hôtel-Dieu vous permettra de faire fructifier votre patrimoine tout en accomplissant une mission d’intérêt général.

Autres logements T4 du programme "HOTEL DIEU"

Disponibilité Prix Genre Pièces Surface Étage
Voir
Disponible
512 700€ Appt. T4 89m2 1er
DO NOT CLICK