Prix
294 000€
294 000€
Type
Appt. au 2ème
Appt. au 2ème
Pièces
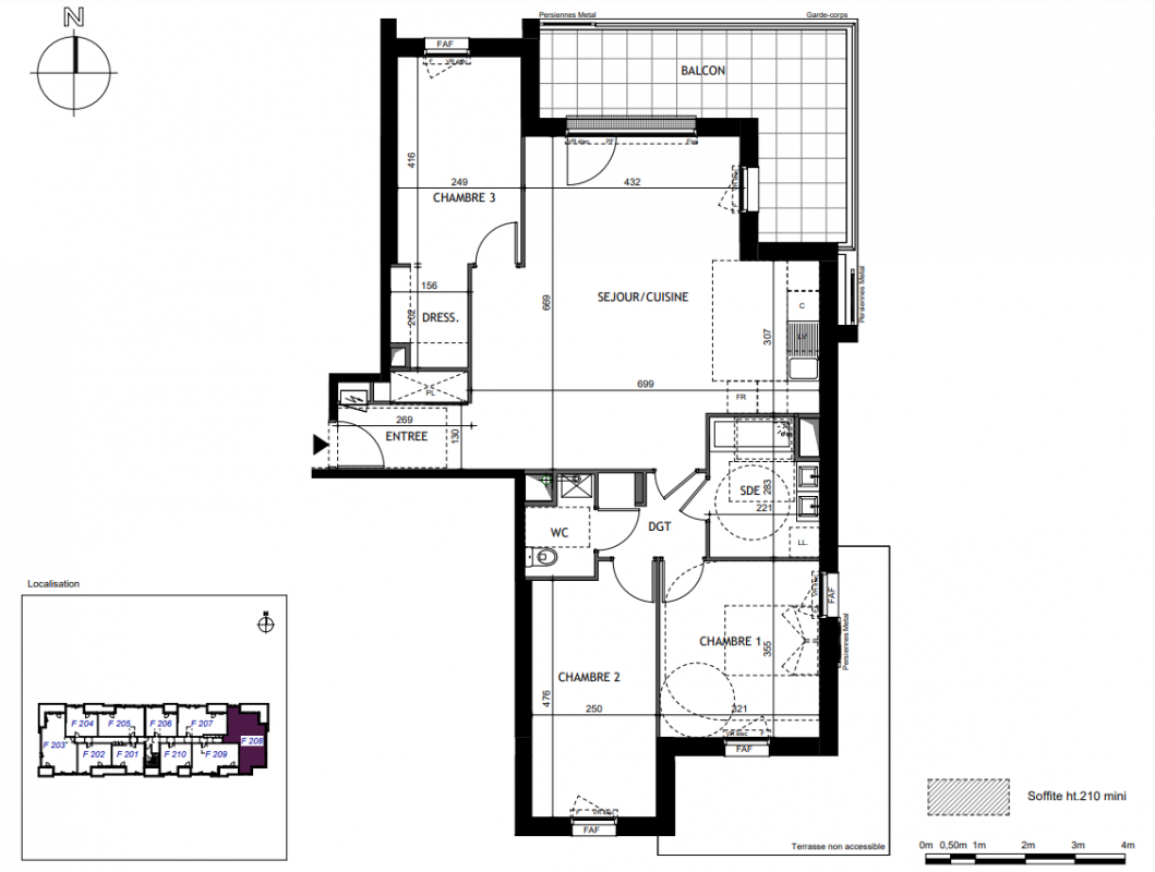
T4
T4
Surface
91.11 m²
91.11 m²
Exposition
Est
Est
Ville
Saran (45770)
Saran (45770)
Livraison
4ème trimestre 2024
4ème trimestre 2024
Informations
01 81 80 39 10
01 81 80 39 10
Présentation du programme "ORGANDI"
A la fois, lieu de vie, de travail, de rencontres et de partage, le quartier QUELLE (re)prendra vie autour d’un bâtiment central de 40 000m². Surnommé « le paquebot », ce symbole du passé industriel du site sera conservé et réhabilité pour devenir le centre animé du futur quartier. Il abritera en effet des commerces, des locaux d’activités, des bureaux, une crèche, un centre médical, un hôtel ou encore des logements. Il servira également de lieu de stationnement pour l’ensemble des habitants et usagers du quartier.