298 009€
Appt. au 3ème
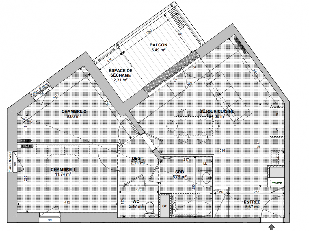
T3
72.04 m²
-
Strasbourg (67000)
1er trimestre 2027
01 81 80 39 10
Présentation du programme "LE WOOD"
LE WOOD - Appartements neufs à Strasbourg, quartier Neuhof.
Située 89 avenue du Neuhof, la résidence s'inscrit au coeur d'un quartier en pleine transformation, à proximité immédiate des commerces, des écoles et des équipements du quotidien.
Connectée à un futur espace public prolongeant la place Saint-Christophe, l'adresse bénéficie d'un environnement pratique et dynamique, avec transports à proximité : bus à 160 m et tramway à quelques minutes à pied permettant de rejoindre rapidement le centre-ville, la gare et l'université.
La résidence propose 61 appartements du 2 au 5 pièces, répartis en trois bâtiments à l'architecture contemporaine mêlant béton et bois, pour une signature esthétique moderne et durable.
Les logements offrent des espaces de vie généreux et lumineux, souvent traversants ou à double orientation. Chaque appartement dispose de prolongements extérieurs et d'aménagements pensés pour le confort : rangements, cellier et optimisation des volumes.
Au quotidien, profitez d'un environnement complet : écoles, collège et équipements sportifs à moins de 10 minutes à pied, commerces de proximité accessibles rapidement, tramway ligne C et bus C8 à proximité...
Un cadre de vie urbain en devenir, idéal pour habiter ou investir à Strasbourg.
Contactez-nous dès maintenant au 03 79 33 10 10 pour plus d'informations !
Autres logements T3 du programme "LE WOOD"
| Disponibilité | Prix | No | Genre | Pièces | Surface | Étage | Disponibilité | Prix | ||
|---|---|---|---|---|---|---|---|---|---|---|
| Voir | Optionné | 277 081€ | C12 | Appt. | T3 | 59.47m2 | 1er | Optionné Mais pas encore vendu 😉 | 277 081€ | Voir |
| Voir | Disponible | 281 517€ | C22 | Appt. | T3 | 59.47m2 | 2ème | Disponible | 281 517€ | Voir |
| Voir | Disponible | 278 673€ | A26 | Appt. | T3 | 62.8m2 | 2ème | Disponible | 278 673€ | Voir |
| Voir | Disponible | 291 071€ | C31 | Appt. | T3 | 63.19m2 | 3ème | Disponible | 291 071€ | Voir |
| Voir | Disponible | 294 142€ | C41 | Appt. | T3 | 63.01m2 | 4ème | Disponible | 294 142€ | Voir |
| Voir | Disponible | 297 782€ | C51 | Appt. | T3 | 63.01m2 | 5ème | Disponible | 297 782€ | Voir |
| Voir | Disponible | 294 825€ | A51 | Appt. | T3 | 66.56m2 | 5ème | Disponible | 294 825€ | Voir |
| Voir | Disponible | 288 910€ | A41 | Appt. | T3 | 66.79m2 | 4ème | Disponible | 288 910€ | Voir |