Prix
389 005€  (TVA 20%)
342 000€  (TVA 5.5%)
Type
Appt. au 2ème
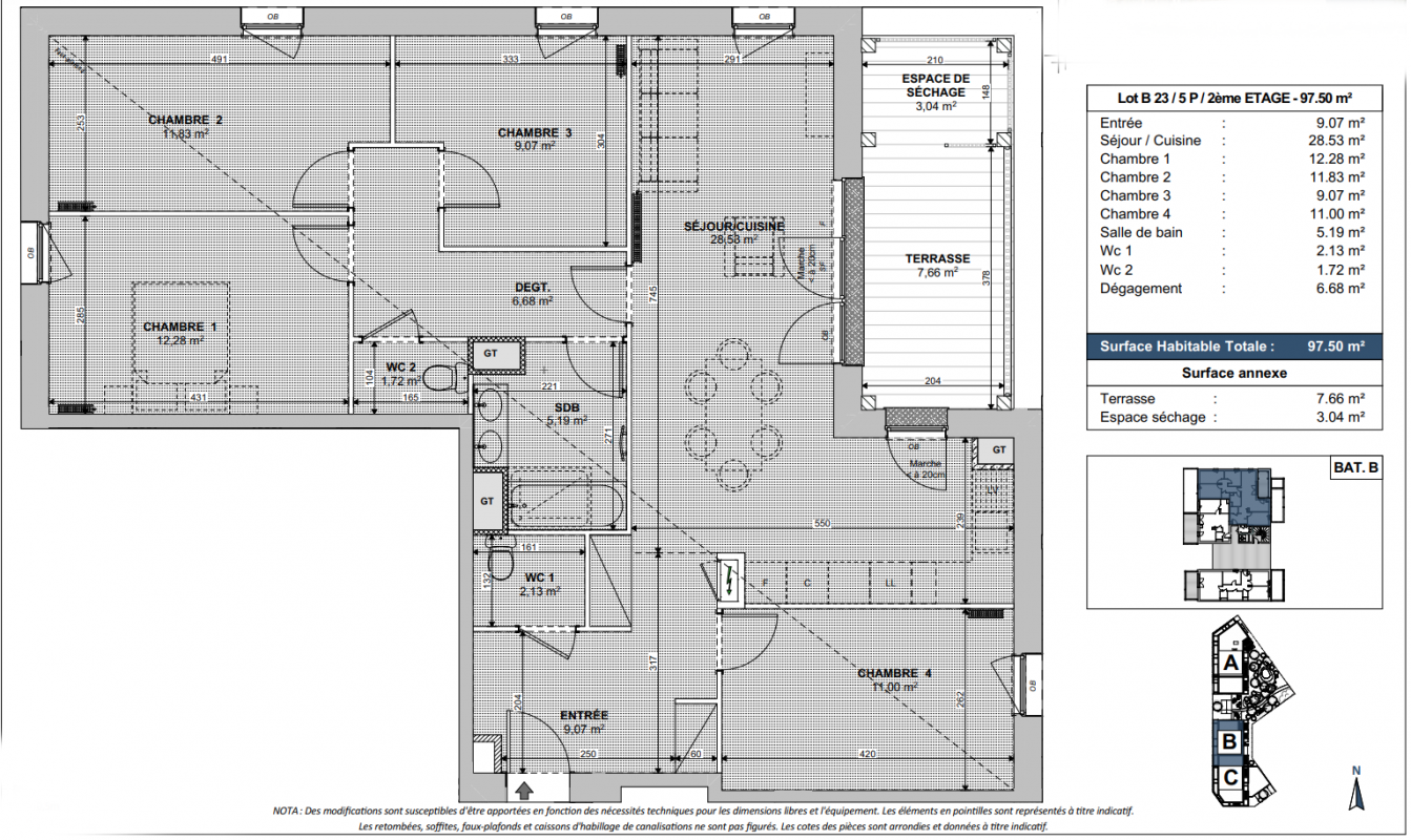
Pièces
T5
Surface
98.13 m²
Exposition
-
Ville
Strasbourg (67000)
Livraison
1er trimestre 2027
Informations
01 81 80 39 10

Présentation du programme "LE WOOD"

LE WOOD - Appartements neufs à Strasbourg, quartier Neuhof.

Située 89 avenue du Neuhof, la résidence s'inscrit au coeur d'un quartier en pleine transformation, à proximité immédiate des commerces, des écoles et des équipements du quotidien.
Connectée à un futur espace public prolongeant la place Saint-Christophe, l'adresse bénéficie d'un environnement pratique et dynamique, avec transports à proximité : bus à 160 m et tramway à quelques minutes à pied permettant de rejoindre rapidement le centre-ville, la gare et l'université.
La résidence propose 61 appartements du 2 au 5 pièces, répartis en trois bâtiments à l'architecture contemporaine mêlant béton et bois, pour une signature esthétique moderne et durable.
Les logements offrent des espaces de vie généreux et lumineux, souvent traversants ou à double orientation. Chaque appartement dispose de prolongements extérieurs et d'aménagements pensés pour le confort : rangements, cellier et optimisation des volumes.
Au quotidien, profitez d'un environnement complet : écoles, collège et équipements sportifs à moins de 10 minutes à pied, commerces de proximité accessibles rapidement, tramway ligne C et bus C8 à proximité...
Un cadre de vie urbain en devenir, idéal pour habiter ou investir à Strasbourg.

Contactez-nous dès maintenant au 03 79 33 10 10 pour plus d'informations !

Autres logements T5 du programme "LE WOOD"

Pas de logements disponibles
DO NOT CLICK