Prix
94 000€
Type
Appt. au 3ème
Pièces
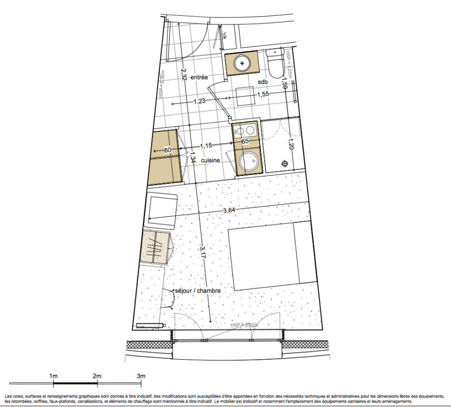
Studio
Surface
23.57 m²
Exposition
Sud
Ville
Strasbourg (67000)
Livraison
1er trimestre 2025
Informations
01 81 80 39 10

Présentation du programme "Nemea Appart'hotel Elypseo Strasbourg Port"

Descriptif résidenceUne localisation stratégique et un cadre de vie privilégiéSituée 45 Route du Rhin, la résidence Elypseo s'inscrit dans un secteur en plein essor : Strasbourg Port du Rhin / Deux-Rives, un quartier réputé pour son dynamisme urbain et sa qualité de vie.Le quartier se distingue par :Un renouveau archictectural, des aménagements modernes et de vastes espaces paysagersLa présence de commerces de proximité, restaurants et services du quotidienUn environnement moderne, apprécié des actifs, touristes et étudiantsUn emplacement stratégique entre Strasbourg-centre et Kehl (Allemagne)Prxomité du Parc de la Citadelle, du jardin des Deux Rives et des berges du RhinUne accessibilité optimaleLa résidence bénéficie d'une excellente desserte, permettant de rejoindre rapidement les points majeurs de Strasbourg :Tram A et D à quelques minutes, reliant directement :le centre-ville historique,la Gare centrale,le campus universitaire,l'Allemagne via Kehl (terminus du tram D).Accès rapide aux axes routiers, dont l'A35, l'A4 et la rocade.Pistes cyclables sécurisées permettant de rejoindre le centre en quelques minutes.Proximité du futur quartier d'affaires des Deux-Rives et des institutions européennes.Des centres d'intérêt majeurs à proximité Sites culturels et historiques : La Cathédrale Notre-Dame de Strasbourg, joyau du gothique européen ; Le quartier historique de la Petite France ; Le Musée d'Art Moderne, le Musée Alsacien, et les institutions culturelles du centre-ville.Proximité avec l'Allemagne, en quelques minutes, les visiteurs peuvent : traverser la frontière, rejoindre le centre de Kehl, son marché, ses commerces et restaurants, profiter de l'ambiance interculturelle franco-allemande unique du secteur.Pôle d'affaires et institutions -  Strasbourg accueille : le Parlement européen, le Conseil de l'Europe, la Cour européenne des droits de l'homme, un pôle universitaire majeur.Descriptif gestionnaireLe Groupe Nemea a été créé en 1994 par Pascal Rocorbet et s'est établi au fil des années comme l'un des leaders dans l'exploitation de résidences services. Il gère plus de 88 établissements sous les enseignes Nemea Résidences Vacances (tourisme), Nemea Appart'hôtel (affaires) et Nemea Appart'Etudes (étudiants). Le groupe bénéficie d'une forte autonomie financière, avec environ deux tiers de son capital détenu par son dirigeant. Afin de soutenir sa croissance, le Groupe Nemea a renforcé ses partenariats bancaires.Extrait du bail commercialObligat...

Autres logements Studio du programme "Nemea Appart'hotel Elypseo Strasbourg Port"

Pas de logements disponibles
DO NOT CLICK