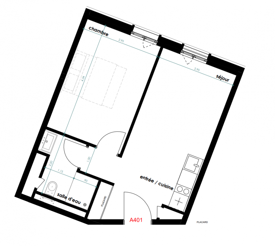
223 000€
Appt. au 0-RDC
T2
37.18 m²
Nord-Ouest
Colmar (68000)
1er trimestre 2028
01 81 80 39 10
Présentation du programme "Citadines Colmar République"
Construit en 1893, l'Hôtel des Postes de Colmar est un bâtiment public réalisé dans un style néo-Renaissance, avec une première extension en 1958 et une deuxième en 1972 pour faire face au développement du courrier.
Si la deuxième annexe est démolie pour accueillir une partie de la résidence "Citadines Colmar République", le bâtiment historique est préservé et rénové dans les règles de l'art.
Il conserve sa vocation d'origine puisque le rez-de-chaussée accueillera toujours une agence postale.
A proximité du coeur historique de Colmar, la résidence profite d'une situation exceptionnelle :
- A 500 m du quartier de la Petite Venise, avec ses canaux bucoliques et ses façades colorées
- A 800 m du quartier des Tanneurs et du marché couvert
- A 600 m du centre-ville ou vieux Colmar, avec son théâtre et ses musées
- A 500 de la gare SNCF
- A 10 min en voiture du parc des expositions et des principales zones d'activités de l'agglomération
Dominant le parc du Champs de Mars, lieu de promenade privilégié des Colmariens, elle fait face au poumon vert du centre-ville.
Généreux en espace, les logements sont tous meublés avec goût et dotés d'une cuisine équipée, offrant le parfait compromis entre hôtel et appartement.
La résidence dispose de quelques places de stationnements en sous-sol et extérieur.
Autres logements T2 du programme "Citadines Colmar République"
| Disponibilité | Prix | No | Genre | Pièces | Surface | Étage | Disponibilité | Prix | ||
|---|---|---|---|---|---|---|---|---|---|---|
| Voir | Disponible | 246 000€ | B002 | Appt. | T2 | 48.86m2 Le bon plan | 0-RDC | Disponible | 246 000€ | Voir |
| Voir | Disponible | 213 000€ | A102 | Appt. | T2 | 36.71m2 | 0-RDC | Disponible | 213 000€ | Voir |
| Voir | Disponible | 235 000€ | A120 | Appt. | T2 | 42.17m2 | 0-RDC | Disponible | 235 000€ | Voir |
| Voir | Optionné | 221 000€ | A115 | Appt. | T2 | 37.95m2 | 0-RDC | Optionné Mais pas encore vendu 😉 | 221 000€ | Voir |
| Voir | Disponible | 219 000€ | A201 | Appt. | T2 | 37.18m2 | 0-RDC | Disponible | 219 000€ | Voir |
| Voir | Disponible | 237 000€ | A220 | Appt. | T2 | 42.17m2 | 0-RDC | Disponible | 237 000€ | Voir |
| Voir | Disponible | 221 000€ | B222 | Appt. | T2 | 38.71m2 | 0-RDC | Disponible | 221 000€ | Voir |
| Voir | Disponible | 257 000€ | B229 | Appt. | T2 | 48.99m2 | 0-RDC | Disponible | 257 000€ | Voir |
| Voir | Disponible | 194 000€ | B234 | Appt. | T2 | 36.16m2 | 0-RDC | Disponible | 194 000€ | Voir |
| Voir | Disponible | 222 000€ | A301 | Appt. | T2 | 37.18m2 | 0-RDC | Disponible | 222 000€ | Voir |
| Voir | Disponible | 239 000€ | A320 | Appt. | T2 | 42.17m2 | 0-RDC | Disponible | 239 000€ | Voir |
| Voir | Disponible | 227 000€ | B322 | Appt. | T2 | 39.27m2 | 0-RDC | Disponible | 227 000€ | Voir |
| Voir | Disponible | 300 000€ | B329 | Appt. | T2 | 51.87m2 | 0-RDC | Disponible | 300 000€ | Voir |
| Voir | Disponible | 276 000€ | B334 | Appt. | T2 | 48.7m2 | 0-RDC | Disponible | 276 000€ | Voir |
| Voir | Disponible | 226 000€ | B338 | Appt. | T2 | 37.49m2 | 0-RDC | Disponible | 226 000€ | Voir |
| Voir | Disponible | 225 000€ | A420 | Appt. | T2 | 42.18m2 | 0-RDC | Disponible | 225 000€ | Voir |
| Voir | Disponible | 230 000€ | A502 | Appt. | T2 | 37.22m2 | 0-RDC | Disponible | 230 000€ | Voir |
| Voir | Disponible | 224 000€ | A504 | Appt. | T2 | 37.09m2 | 0-RDC | Disponible | 224 000€ | Voir |
| Voir | Disponible | 231 000€ | A505 | Appt. | T2 | 37.09m2 | 0-RDC | Disponible | 231 000€ | Voir |
| Voir | Disponible | 221 000€ | A506 | Appt. | T2 | 36.6m2 | 0-RDC | Disponible | 221 000€ | Voir |
| Voir | Disponible | 225 000€ | A507 | Appt. | T2 | 37.3m2 | 0-RDC | Disponible | 225 000€ | Voir |
| Voir | Disponible | 221 000€ | A508 | Appt. | T2 | 36.54m2 | 0-RDC | Disponible | 221 000€ | Voir |