186 000€
Appt. au 0-RDC
-
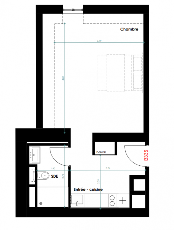
33.46 m²
Nord-Ouest
Colmar (68000)
1er trimestre 2028
01 81 80 39 10
Présentation du programme "Citadines Colmar République"
Construit en 1893, l'Hôtel des Postes de Colmar est un bâtiment public réalisé dans un style néo-Renaissance, avec une première extension en 1958 et une deuxième en 1972 pour faire face au développement du courrier.
Si la deuxième annexe est démolie pour accueillir une partie de la résidence "Citadines Colmar République", le bâtiment historique est préservé et rénové dans les règles de l'art.
Il conserve sa vocation d'origine puisque le rez-de-chaussée accueillera toujours une agence postale.
A proximité du coeur historique de Colmar, la résidence profite d'une situation exceptionnelle :
- A 500 m du quartier de la Petite Venise, avec ses canaux bucoliques et ses façades colorées
- A 800 m du quartier des Tanneurs et du marché couvert
- A 600 m du centre-ville ou vieux Colmar, avec son théâtre et ses musées
- A 500 de la gare SNCF
- A 10 min en voiture du parc des expositions et des principales zones d'activités de l'agglomération
Dominant le parc du Champs de Mars, lieu de promenade privilégié des Colmariens, elle fait face au poumon vert du centre-ville.
Généreux en espace, les logements sont tous meublés avec goût et dotés d'une cuisine équipée, offrant le parfait compromis entre hôtel et appartement.
La résidence dispose de quelques places de stationnements en sous-sol et extérieur.
Autres logements - du programme "Citadines Colmar République"
| Disponibilité | Prix | No | Genre | Pièces | Surface | Étage | Disponibilité | Prix | ||
|---|---|---|---|---|---|---|---|---|---|---|
| Voir | Optionné | 143 000€ | A212 | Appt. | - | 24.79m2 | 0-RDC | Optionné Mais pas encore vendu 😉 | 143 000€ | Voir |
| Voir | Optionné | 143 000€ | A216 | Appt. | - | 24.79m2 | 0-RDC | Optionné Mais pas encore vendu 😉 | 143 000€ | Voir |
| Voir | Disponible | 202 000€ | B227 | Appt. | - | 37.26m2 | 0-RDC | Disponible | 202 000€ | Voir |
| Voir | Disponible | 200 000€ | B235 | Appt. | - | 36.95m2 | 0-RDC | Disponible | 200 000€ | Voir |
| Voir | Disponible | 147 000€ | A303 | Appt. | - | 28.68m2 | 0-RDC | Disponible | 147 000€ | Voir |
| Voir | Disponible | 228 000€ | B332 | Appt. | - | 42.91m2 | 0-RDC | Disponible | 228 000€ | Voir |
| Voir | Disponible | 149 000€ | A403 | Appt. | - | 28.68m2 | 0-RDC | Disponible | 149 000€ | Voir |