Prix
399 000€
Type
Appt. au 3ème
Pièces
T4
Surface
96.88 m²
Exposition
Sud-Ouest
Ville
Saint-Louis (68128)
Livraison
3ème trimestre 2024
Informations
01 81 80 39 10

Présentation du programme "Programme neuf Saint-Louis (68128)"

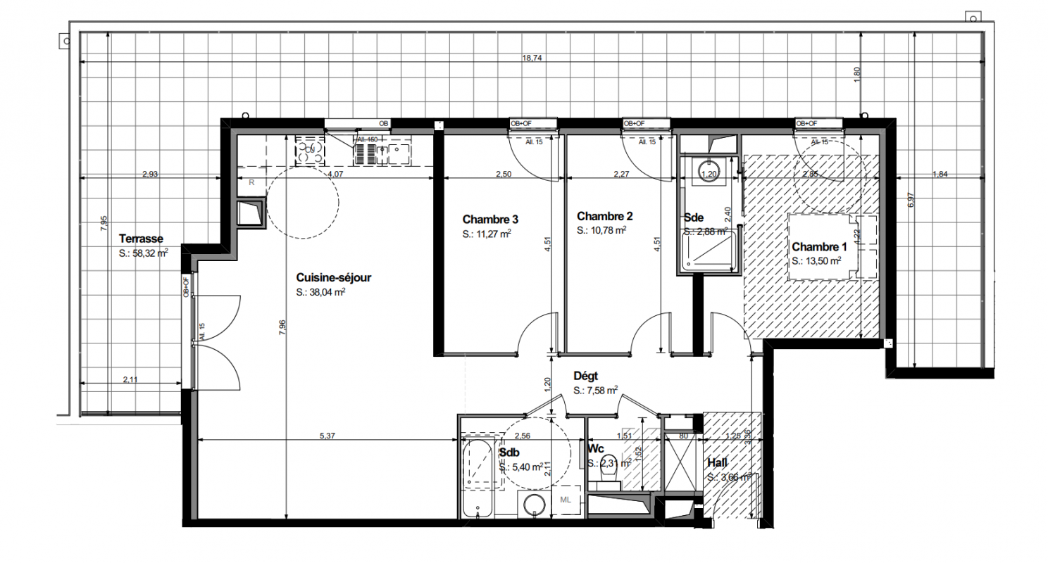
Devenez propriétaire de votre appartement neuf 2 ou 4 pièces à SAINT-LOUIS en LIVRAISON IMMEDIATE ! Contactez vite un de nos conseillers pour visiter notre appartement décoré et vous projeter dans votre futur chez vous !Magnifique appartement 4 pièces de 95m2, idéalement situé dans une résidence intimiste au dernier étage ! Toutes les pièces donnent accès à une terrasse de 58m2 avec vue dégagée. Le logement se compose d'un beau séjour et de 3 chambres, d'une salle de bains et une salle de douche . Un garage en sous-sol vient compléter le bien. Profitez d_un confort toute l'année grâce aux dernières normes énergétiques. Spacieux appartement 2 pièces de 41m2, situé au 1er étage. Le logement se compose d'un grand espace séjour / cuisine de 20m2 s'ouvrant sur un balcon de 10m2, d'une belle chambre de 12m2, une salle de bain moderne et toilettes séparées. Contactez vite un de nos conseillers pour découvrir tous nos appartements neufs à Saint-Louis et pour profiter de cette dernière opportunité !

Autres logements T4 du programme "Programme neuf Saint-Louis (68128)"

Pas de logements disponibles
DO NOT CLICK