186 000€
Appt. au 2ème
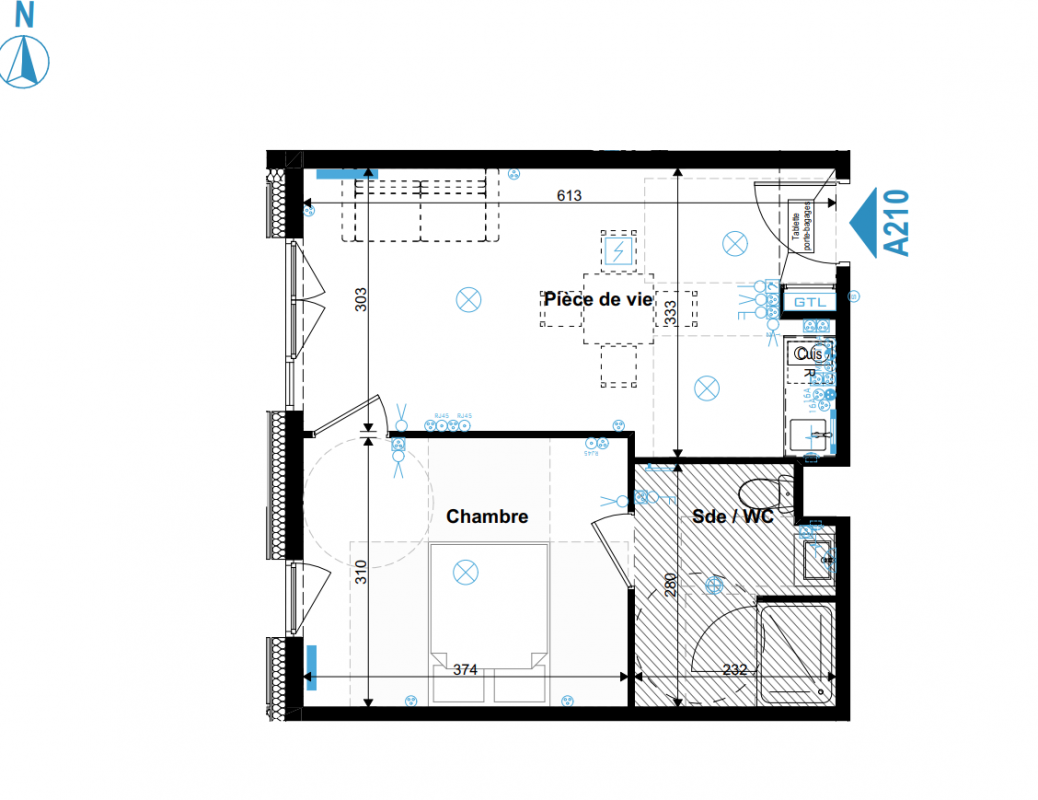
T2
36.69 m²
Ouest
Metz (57000)
2ème trimestre 2026
01 81 80 39 10
Présentation du programme "My Campus"
Vous souhaitez y habiter ? Vérifiez votre éligibilité au PTZ avec nos équipes !Vous souhaitez le mettre en location ? Vous avez le choix entre de la location nue ou meublée avec un pack gestionnaire. Contactez nos équipes pour une simulation. Investir à Metz, une ville nature située dans la plaine de la Moselle à seulement 1h20 de Paris en TGVMetz offre un cadre de vie idéal aux habitants grâce à ses 580 ha d’espaces verts, à son port de plaisance labellisé « Pavillon bleu » et ses 36 km de promenades le long des cours d’eau.Dotée d’un patrimoine architectural exceptionnel, la cité dispose de la plus vieille église de France datant du IVème siècle et du centre d’Art contemporain Pompidou-Metz ouvert en 2010. Metz, une ville dynamique, attractive et créativeElle propose une offre culturelle variée en accueillant des événements incontournables comme le Festival Constellations dédié à l’art numérique ou le Festival international du spectacle de rue « Hop Hop Hop ».Un marché locatif actif qui compte 41% de locataires et une demande locative émanant de tous les profils.Un pôle étudiant reconnu : Metz propose un large éventail de formations, notamment au Technopôle, un quartier en expansion.À seulement 1h20 de Paris en train, Metz est au croisement des grands axes européens, facilitant ainsi les déplacements et renforçant son potentiel locatif. Commodités et transportsUn large choix de commodités accessibles à pied : centre commercial Cora à seulement 850 m, zone commerciale Metzanine à 1 km, campus Centrale Supélec, IMC Business School, golf, gymnase et stade du Technopôle à 800 m.Lignes A et B du Mettis accessibles à moins de 5 minutes à pied, reliant rapidement le centre-ville.Gare de Metz Ville à 20 minutes en transport en commun. Focus prestations/résidenceUne résidence RE2020 moderne et écologique qui propose des T1 et T2 idéalement conçus pour les étudiants et jeunes actifs.Des espaces communs premium : salle de sport, laverie, espaces de coworking, patio extérieur arboré favorisant la biodiversité, deux halls d'entrée sécurisés avec ascenseurs, et local à vélo. Le + du programmeUne localisation stratégique au cœur du Technopôle, offrant un vivier de locataires potentiels grâce à la proximité immédiate avec les campus, centres de recherche et entreprises innovantes.
Autres logements T2 du programme "My Campus"
| Disponibilité | Prix | No | Genre | Pièces | Surface | Étage | Disponibilité | Prix | ||
|---|---|---|---|---|---|---|---|---|---|---|
| Voir | Disponible | 194 500€ | A213 | Appt. | T2 | 39.74m2 | 2ème | Disponible | 194 500€ | Voir |
| Voir | Disponible | 182 000€ | A104 | Appt. | T2 | 39.01m2 Le bon plan | 1er | Disponible | 182 000€ | Voir |
| Voir | Disponible | 174 000€ | A201 | Appt. | T2 | 36.21m2 | 2ème | Disponible | 174 000€ | Voir |
| Voir | Disponible | 175 500€ | A110 | Appt. | T2 | 36.69m2 | 1er | Disponible | 175 500€ | Voir |
| Voir | Disponible | 186 500€ | A204 | Appt. | T2 | 39.01m2 | 2ème | Disponible | 186 500€ | Voir |
| Voir | Disponible | 220 500€ | A221 | Appt. | T2 | 45.73m2 | 2ème | Disponible | 220 500€ | Voir |