45 000€
270 036€
600€
270 036€
600€
Type
Appt. au 1er
Appt. au 1er
Pièces
T2
T2
Surface
39.5 m²
39.5 m²
Exposition
-
-
Ville
Metz (57000)
Metz (57000)
Livraison
-
-
Informations
01 81 80 39 10
01 81 80 39 10
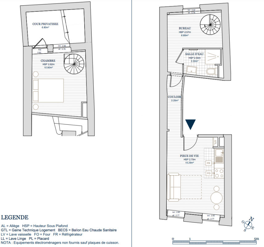
Présentation du programme "Rue Saint-Etienne"
À la fois contemporaine et cité trimillénairecité, Metz, ville historique de Lorraine, se distingue par son patrimoine urbain, architectural et paysager exceptionnel qui s’égrène le long des rives de la Moselle. C'est dans le quartier Outre- Seille, que l'immeuble au 3 rue Saint-Étienne jouit d’un emplacement privilégié au cœur du centre historique de la ville. Les rues piétonnes de la vieille ville, bordées de vitrines, sont un appel à la flânerie, entre le jardin des Tanneurs et les terrasses de la place Saint-Louis. Cet immeuble se dresse sur 5 étages et proposera 7 appartements du T1 au T3.
Autres logements T2 du programme "Rue Saint-Etienne"
| Disponibilité | Prix | No | Genre | Pièces | Surface | Étage | Disponibilité | Prix | ||
|---|---|---|---|---|---|---|---|---|---|---|
| Voir | Disponible | 319 138€ | 4G | Appt. | T2 | 40.1m2 | 4ème | Disponible | 319 138€ Prix foncier 45 000€ Prix travaux 274 138€ | Voir |
| Voir | Disponible | 336 125€ | RDC D | Appt. | T2 | 42m2 | 0-RDC | Disponible | 336 125€ Prix foncier 49 000€ Prix travaux 287 125€ | Voir |