Ce lot n’est plus disponible chez VIANOVA ou est vendu.

Vous pouvez revenir dans 24h pour vérifier le stock à jour ou contacter un conseiller Vianova pour vérifier le stock en direct.
Vous pouvez également continuer votre recherche sur notre site « ici ».

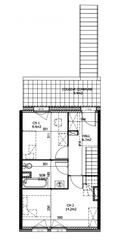
Prix
239 000€
Type
Appt. au 1er
Pièces
T3
Surface
70.8 m²
Exposition
-
Ville
Tourcoing (59200)
Livraison
4ème trimestre 2024
Informations
01 81 80 39 10

Présentation du programme "OASIS"

Programme neuf OASIS à Tourcoing - 59200. Renseignez-vous dès maintenant ! Pour toutes informations complémentaires, prenez contact avec nous !

Autres logements T3 du programme "OASIS"

Disponibilité Prix Genre Pièces Surface Étage
Voir
Archivé
238 000€ Appt. T3 68.8m2 1er
DO NOT CLICK