Prix
145 000€
145 000€
Type
Appt. au 1er
Appt. au 1er
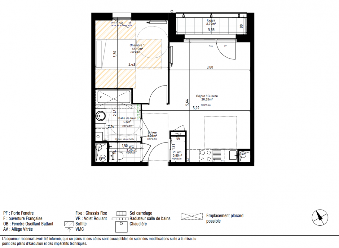
Pièces
T2
T2
Surface
42 m²
42 m²
Exposition
Nord-Est
Nord-Est
Ville
Valenciennes (59300)
Valenciennes (59300)
Livraison
2ème trimestre 2024
2ème trimestre 2024
Informations
01 81 80 39 10
01 81 80 39 10
Présentation du programme "LE CLOS MACAREZ"
découvrez les maisons du Clos Macarez ! Ces maisons neuves disposent de 3 chambres, d'espaces de vie généreux et conviviaux. Tous les logements disposent de beaux jardins privatifs ainsi que d'une place de stationnement. Proche des commerces et des transports. Prenez contact avec votre conseiller pour plus d'informations.