118 700€
Appt. au 2ème
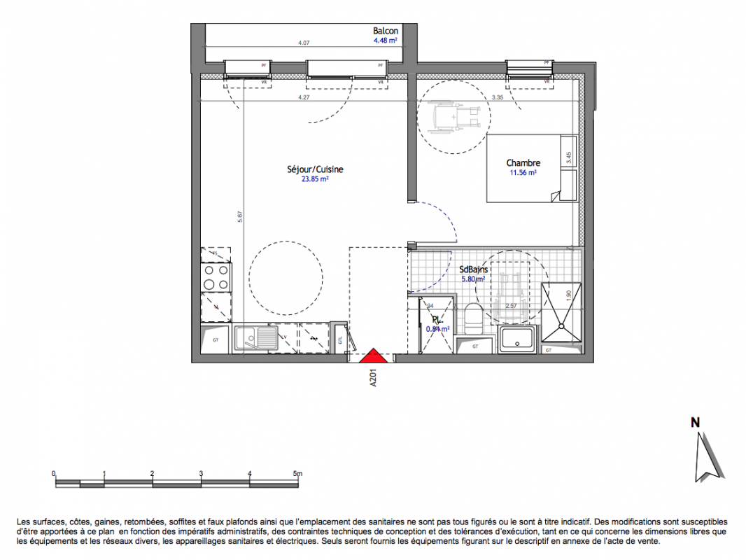
T2
42.05 m²
Nord
Amiens (80000)
3ème trimestre 2021
01 81 80 39 10
Présentation du programme "South Park - MS Hors Perl"
La résidence South Park sera construite à Amiens (180 000 habitants) dans le quartier chic et prisé d’Henriville. La résidence South Park sera située à deux pas du centre ville, du quartier historique à proximité immédiate de nombreuses écoles et commerces.
La résidence South Park comprendra quatre bâtiments au cœur d’un parc boisé.
Seuls cinq appartements sont proposés en démembrement sur les cent vingt six que comptera la résidence.
Paramètres techniques et financiers :
- La durée du démembrement sera de 15 ans
- La valorisation économique de la Nue Propriété sera de 62 % de la valeur de la pleine propriété
- 5 appartements de typologie T2 ou T3 sont proposés à la vente
- Tous les appartements bénéficieront d’un balcon ou d’une terrasse et d’un parking
- Réglementation thermique RT 2012
- Le prix moyen du mètre2 habitable en pleine propriété hors parking est de 4 349 €