318 600€ (TVA 20%)
280 103€ (TVA 5.5%)
Appt. au 3ème
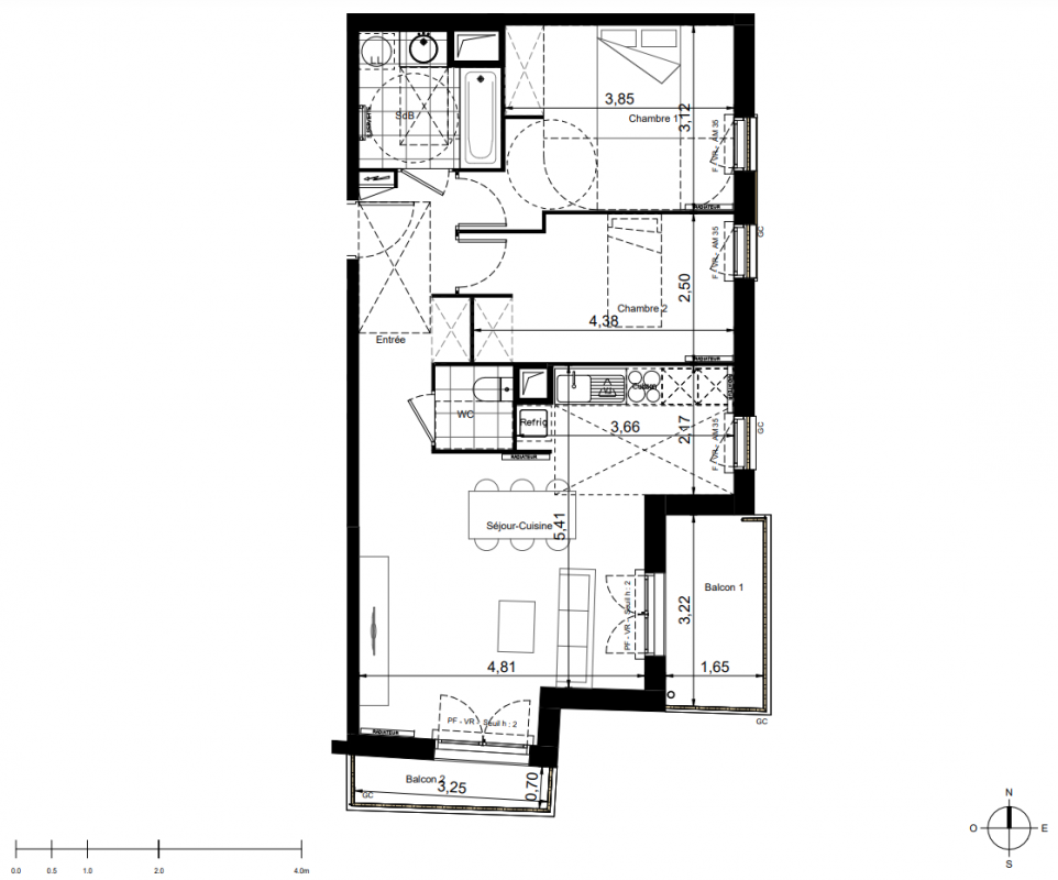
T3
65.45 m²
-
Brunoy (91800)
1er trimestre 2028
01 81 80 39 10
Présentation du programme "Programme neuf Brunoy (91800)"
Idéalement située, la ville de Brunoy dispose d'infrastructures essentielles au quotidien (établissements médicaux, équipements sportifs, théâtre, médiathèque et espaces culturels), ainsi que des établissements scolaires de la maternelle au lycée. Son accessibilité est assurée par la ligne D du RER, un réseau de bus dense, ainsi qu'un accès rapide à l'A6 et à la N104. Programme neuf Brunoy (91800) dispose notamment d'un arrêt de bus à moins de 200 m, permettant de rejoindre la gare RER D de Brunoy en 10 minutes.
Répartis sur 2 bâtiments à taille humaine, la résidence dispose de 66 logements, du studio au 4 pièces, chacun offrant des aménagements optimisés qui maximisent la luminosité et la sensation d'espace. Tous les appartements disposent d'un espace extérieur privatif (balcon, terrasse ou jardin), offrant pour les derniers étages des vues dégagées sur la vallée de l'Yerres. Côté route de Brie, l'alignement de chênes remarquables vient renforcer la tranquillité des habitants et s'intègre parfaitement au jardin fleuri et arboré en coeur d'îlot qui vient agrémenter l'intimité et le confort du lieu.
La résidence propose une architecture moderne élégante et s'intègre harmonieusement avec la partie habitation pavillonnaire de la route de Brie, avec l'usage du bois et de teintes naturelles et des lignes en adéquation avec l'architecture environnante.
Autres logements T3 du programme "Programme neuf Brunoy (91800)"
| Disponibilité | Prix | No | Genre | Pièces | Surface | Étage | Disponibilité | Prix | ||
|---|---|---|---|---|---|---|---|---|---|---|
| Voir | Disponible | 285 600€ | 2404 | Appt. | T3 | 54m2 | 4ème | Disponible | 285 600€ | Voir |
| Voir | Disponible | 327 600€ | 1302 | Appt. | T3 | 57.7m2 | 3ème | Disponible | 327 600€ | Voir |
| Voir | Disponible | 309 600€ | 2403 | Appt. | T3 | 61.05m2 | 4ème | Disponible | 309 600€ | Voir |
| Voir | Disponible | 307 207€ | 1107 | Appt. | T3 | 62.2m2 | 1er | Disponible | 307 207€ | Voir |
| Voir | Disponible | 311 784€ | 1307 | Appt. | T3 | 62.2m2 | 3ème | Disponible | 311 784€ | Voir |
| Voir | Disponible | 294 744€ | 2002 | Appt. | T3 | 63.55m2 | 0-RDC | Disponible | 294 744€ | Voir |
| Voir | Disponible | 293 460€ | 2102 | Appt. | T3 | 63.1m2 | 1er | Disponible | 293 460€ | Voir |
| Voir | Disponible | 307 205€ | 2001 | Appt. | T3 | 64.75m2 | 0-RDC | Disponible | 307 205€ | Voir |
| Voir | Optionné | 303 607€ | 1104 | Appt. | T3 | 65.1m2 | 1er | Optionné Mais pas encore vendu 😉 | 303 607€ | Voir |
| Voir | Disponible | 307 200€ | 1304 | Appt. | T3 | 65.1m2 | 3ème | Disponible | 307 200€ | Voir |
| Voir | Disponible | 302 455€ | 1103 | Appt. | T3 | 65.15m2 | 1er | Disponible | 302 455€ | Voir |
| Voir | Disponible | 304 732€ | 1203 | Appt. | T3 | 65.2m2 | 2ème | Disponible | 304 732€ | Voir |
| Voir | Disponible | 307 200€ | 1303 | Appt. | T3 | 65.2m2 | 3ème | Disponible | 307 200€ | Voir |
| Voir | Disponible | 316 320€ | 2201 | Appt. | T3 | 65.4m2 | 2ème | Disponible | 316 320€ | Voir |
| Voir | Disponible | 309 516€ | 2106 | Appt. | T3 | 65.45m2 | 1er | Disponible | 309 516€ | Voir |
| Voir | Disponible | 317 471€ | 2206 | Appt. | T3 | 65.45m2 | 2ème | Disponible | 317 471€ | Voir |
| Voir | Disponible | 320 880€ | 2307 | Appt. | T3 | 65.7m2 | 3ème | Disponible | 320 880€ | Voir |
| Voir | Disponible | 311 784€ | 2107 | Appt. | T3 | 66.1m2 | 1er | Disponible | 311 784€ | Voir |
| Voir | Disponible | 316 333€ | 2207 | Appt. | T3 | 66.1m2 | 2ème | Disponible | 316 333€ | Voir |
| Voir | Disponible | 325 207€ | 1202 | Appt. | T3 | 66.7m2 | 2ème | Disponible | 325 207€ | Voir |
| Voir | Disponible | 320 647€ | 1102 | Appt. | T3 | 66.7m2 | 1er | Disponible | 320 647€ | Voir |
| Voir | Disponible | 309 247€ | 1207 | Appt. | T3 | 62.2m2 | 2ème | Disponible | 309 247€ | Voir |