Ce lot n’est plus disponible chez VIANOVA ou est vendu.
Vous pouvez revenir dans 24h pour vérifier le stock à jour ou contacter un conseiller Vianova pour vérifier le stock en direct.
Vous pouvez également continuer votre recherche sur notre site « ici ».
246 000€
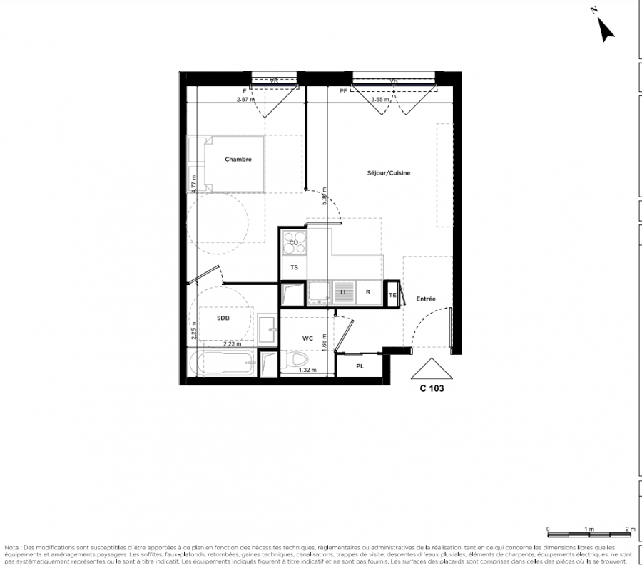
Appt. au 0-RDC
T2
42.73 m²
-
Igny (91430)
2ème trimestre 2028
01 81 80 39 10
Présentation du programme "HAMO"
Au sud d’Igny, dans le secteur Joliot Curie, la résidence HAMO s’inscrit dans un site de près de six hectares entièrement réaménagé, alliant confort moderne et ambiance conviviale.Des appartements neufs du studio au 4 pièces avec extérieur pour la majorité des logements.Commodités, écoles, équipements sportifs et culturels sont accessibles à pied, facilitant la vie de tous les jours.Le projet renforce l’esprit village d’Igny : un lieu où les enfants jouent, les voisins se croisent et la communauté se retrouve autour d’un véritable art de vivre.De nouveaux aménagements viendront enrichir le quartier : Parc paysager et espaces de loisirs (jeux, city stade), groupe scolaire, gymnase et médiathèque, place centrale et commerces en pied d’immeuble et chemins piétons et mobilités doucesHAMO offre un environnement où il fait bon vivre, proche de tout et tourné vers demain. L’élégance dernière générationHAMO s'engage pour un avenir durable en renaturant le site, avec 40 % de l'espace redonné à la nature.La résidence est certifié NF Habitat HQE, garantissant une haute qualité environnementale en termes de consommation énergétique, d'isolation et de choix des matériaux : Parc au pied de la résidence, un espace jeux pour enfants, des commerces en pied d’immeuble…Architecture élégante et contemporaine avec des parements de pierre meulière, des couleurs douces et naturelles et des toitures en pente.
Autres logements T2 du programme "HAMO"
| Disponibilité | Prix | No | Genre | Pièces | Surface | Étage | Disponibilité | Prix | ||
|---|---|---|---|---|---|---|---|---|---|---|
| Voir | Disponible | 269 000€ | A107 | Appt. | T2 | 46.23m2 | 0-RDC | Disponible | 269 000€ | Voir |
| Voir | Disponible | 266 000€ | A201 | Appt. | T2 | 44.61m2 | 0-RDC | Disponible | 266 000€ | Voir |
| Voir | Disponible | 260 000€ | A101 | Appt. | T2 | 44.85m2 | 0-RDC | Disponible | 260 000€ | Voir |
| Voir | Disponible | 256 000€ | A306 | Appt. | T2 | 45.18m2 | 0-RDC | Disponible | 256 000€ | Voir |
| Voir | Disponible | 243 000€ | C003 | Appt. | T2 | 42.73m2 | 0-RDC | Disponible | 243 000€ | Voir |
| Voir | Disponible | 270 000€ | A301 | Appt. | T2 | 44.84m2 | 0-RDC | Disponible | 270 000€ | Voir |
| Voir | Disponible | 287 000€ | C002 | Appt. | T2 | 44.84m2 | 0-RDC | Disponible | 287 000€ | Voir |
| Voir | Disponible | 252 000€ | C303 | Appt. | T2 | 42.73m2 | 0-RDC | Disponible | 252 000€ | Voir |
| Voir | Disponible | 287 000€ | C402 | Appt. | T2 | 46.71m2 | 0-RDC | Disponible | 287 000€ | Voir |