338 000€
Appt. au 0-RDC
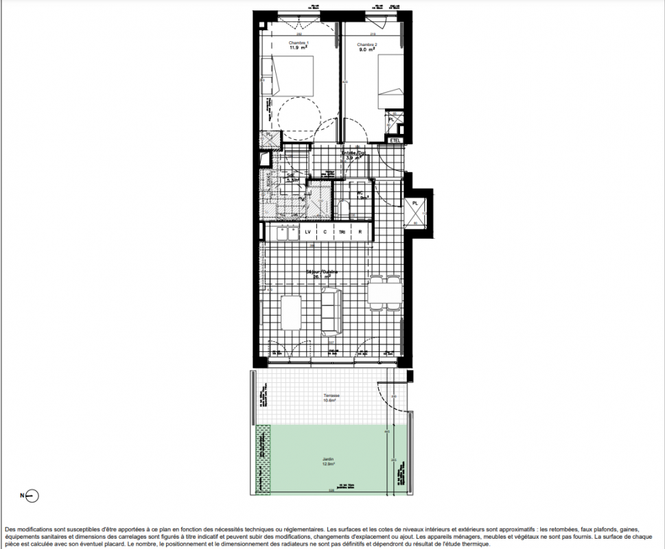
T3
58.1 m²
-
Saint-Aubin (91190)
1er trimestre 2027
01 81 80 39 10
Présentation du programme "Parenthèse - GIF SUR YVETTE"
Pour tous renseignements : Marie Hélène Le Goff : mhlegoff@Vianova.com - 06.46.08.58.48 **COMMISSION 6% HT** Remise - 2 000€ par pièce *+ frais de notaire offerts** ! A Gif sur Yvette au coeur du plateau de Saclay et du quartier du Moulon, découvrez en exclusivité la nouvelle réalisation Vianova ! La résidence propose un large choix de logements neufs pour répondre à tous les styles de vie : appartements neufs du 2 au 4 pièces, maisons 4 et 5 pièces duplex. A proximité de toutes les commodités : crèche, Groupe Scolaire du Moulon de la maternelle au collège, campus universitaire, grands espaces arborés comme le Parc du Moulon et la place du Carré des Sciences, Plaine des sports, nombreux commerces etc. cette nouvelle adresse offre un cadre de vie privilégié à quelques pas du futur métro 18 ( gare Orsay-Gif en 2026) , pour habiter ou investir.