Prix
232 999€  (TVA 20%)
204 845€  (TVA 5.5%)
Type
Appt. au 12ème
Pièces
T2
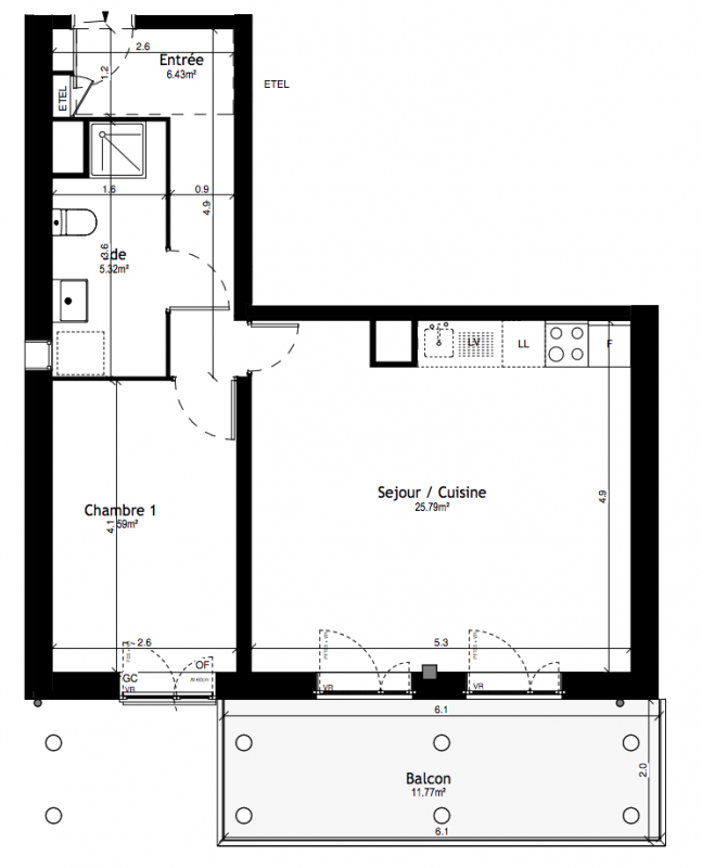
Surface
48 m²
Exposition
Est
Ville
Vigneux-sur-Seine (91270)
Livraison
2ème trimestre 2027
Informations
01 81 80 39 10

Présentation du programme "L'APARTÉ"

A Vigneux-sur-Seine, votre appart neuf à partir de 650,03 euros par mois (1) pendant les 3 premières années (le montant affiché tient compte de l'offre commerciale) + FRAIS DE NOTAIRE OFFERTS (2) jusqu'au 31 mars 2026.Découvrez notre réalisation à Vigneux-Sur-Seine, signée de l'Atelier d'Urbanité Roland Castro. La résidence L'Aparté s'installe dans la tour emblématique 27 et se démarque par sa verticalité architecturale à l'échelle du quartier de la Croix-Blanche, de la ville et de la métropole. Une réhabilitation de 120 appartements du studio au 5 pièces, et d'un collectif de 13 appartements et de quelques maisons de ville, au pied de la tour. L'opportunité de devenir propriétaire en bénéficiant de la TVA réduite*!. Profitez d'une terrasse partagée exceptionnelle au 15ème étage de la tour avec des vues imprenables sur la ville et ses espaces naturels. A seulement 7 minutes à pied de la Gare RER D de Vigneux-Sur-Seine, vivez dans un quartier en renouveau, proche du centre-ville, des commerces et des écoles.(1)(2) Voir conditions sur notre site internet.

Autres logements T2 du programme "L'APARTÉ"

Disponibilité Prix Genre Pièces Surface Étage
Voir
Optionné
232 000€ Appt. T2 48m2 7ème
DO NOT CLICK