Prix
427 000€
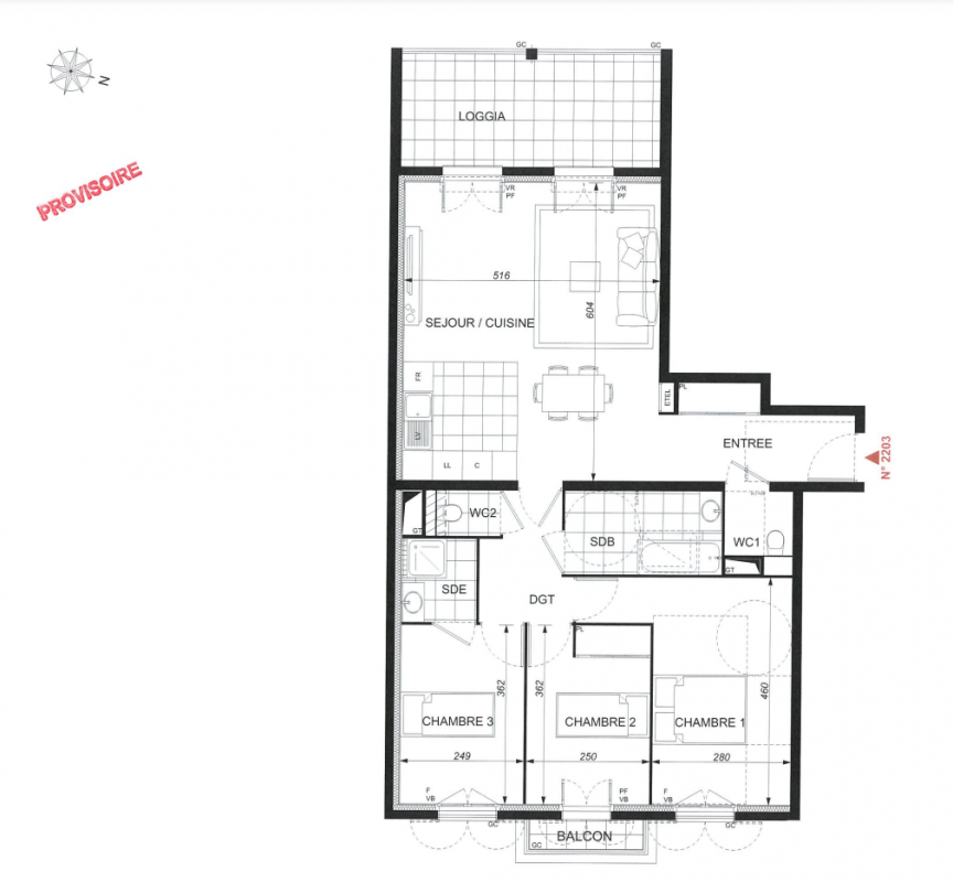
Type
Appt. au 2ème
Pièces
T4
Surface
85.39 m²
Exposition
Ouest
Ville
Wissous (91320)
Livraison
1er trimestre 2026
Informations
01 81 80 39 10

Présentation du programme "Unisson"

Devenez propriétaire de votre appartement neuf
La sérénité d’une commune à taille humaine, les équipements d’une ville active, le dynamisme d’un territoire en pleine croissance. À 15 km au sud de Paris, Wissous profite de la manne économique du bassin d’Orly. Découvrez en avant-première l’offre d’appartements, du 2 au 4 pièces, de cette nouvelle réalisation.

Autres logements T4 du programme "Unisson"

Disponibilité Prix Genre Pièces Surface Étage
Voir
Disponible
428 000€ Appt. T4 85.39m2 3ème
DO NOT CLICK