Ce lot n’est plus disponible chez VIANOVA ou est vendu.
Vous pouvez revenir dans 24h pour vérifier le stock à jour ou contacter un conseiller Vianova pour vérifier le stock en direct.
Vous pouvez également continuer votre recherche sur notre site « ici ».
Prix
929 000€
929 000€
Type
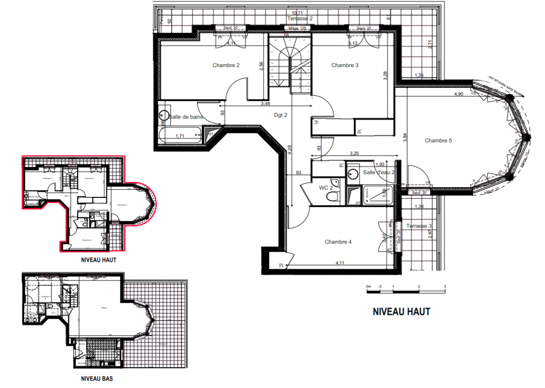
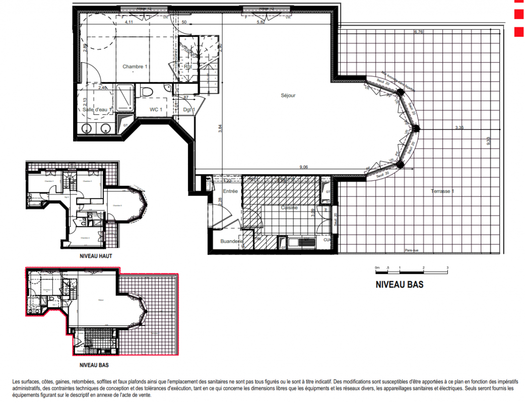
Appt. au 0-RDC
Appt. au 0-RDC
Pièces
T6
T6
Surface
151.35 m²
151.35 m²
Exposition
-
-
Ville
Clamart (92140)
Clamart (92140)
Livraison
2ème trimestre 2026
2ème trimestre 2026
Informations
01 81 80 39 10
01 81 80 39 10
Présentation du programme "L'Orfèvre"
La nouvelle résidence L’Orfèvre, un bijou d’architecture inspiré du style art déco, située dans le nouveau quartier "Grand Canal” vous propose des appartements neufs du 2 pièces au 6 pièces dont des duplex avec coursives, balcons, terrasses ou jardins privatifs.Les logement neufs aux prestations de qualité bénéficient d'intérieurs lumineux et traversants pour certains.Arborée de part ses espaces verts, cette résidence vous propose en son sein un joyau verdoyant accessible à tous. Accessible et connectée, vous pourrez vous déplacer facilement par le tramway T6 Pavé Blanc qui se situe au pied du quartier.

