Prix
433 200€
Type
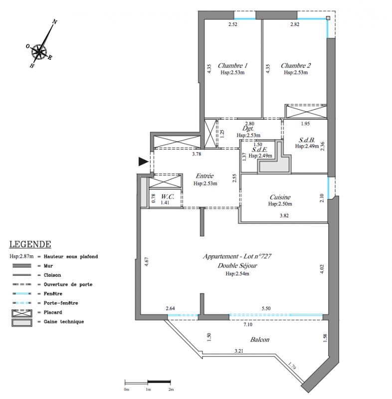
Appt. au 1er
Pièces
T3
Surface
86.85 m²
Exposition
-
Ville
Courbevoie (92400)
Livraison
3ème trimestre 2005
Informations
01 81 80 39 10

Présentation du programme "Le Parc"

Un quartier dynamique et familial


À l’est de Courbevoie, le quartier de Bécon est recherché pour son atmosphère conviviale et son centre commerçant. Les riverains profitent d’un environnement privilégié, des berges de Seine aménagées pour la promenade jusqu’au parc de Bécon, le plus vaste espace vert de la ville, insolite et chargé d’histoire.


À proximité de l'île de la Jatte, l’une excellente desserte vers Paris, La Défense et Levallois-Perret.​


À seulement quelques minutes de l'île de la Jatte, “Le Parc” bénéficie d’une excellente desserte vers Paris et les communes voisines. La gare de Bécon-les- Bruyères à moins de 10 min à pied sera desservie par la ligne 15 Ouest du Grand Paris Express (2030).

Autres logements T3 du programme "Le Parc"

Disponibilité Prix Genre Pièces Surface Étage
Voir
Disponible
360 000€ Appt. T3 70.15m2 4ème
Voir
Disponible
399 600€ Appt. T3 70.25m2 6ème
Voir
Disponible
505 200€ Appt. T3 86.2m2 9ème
DO NOT CLICK