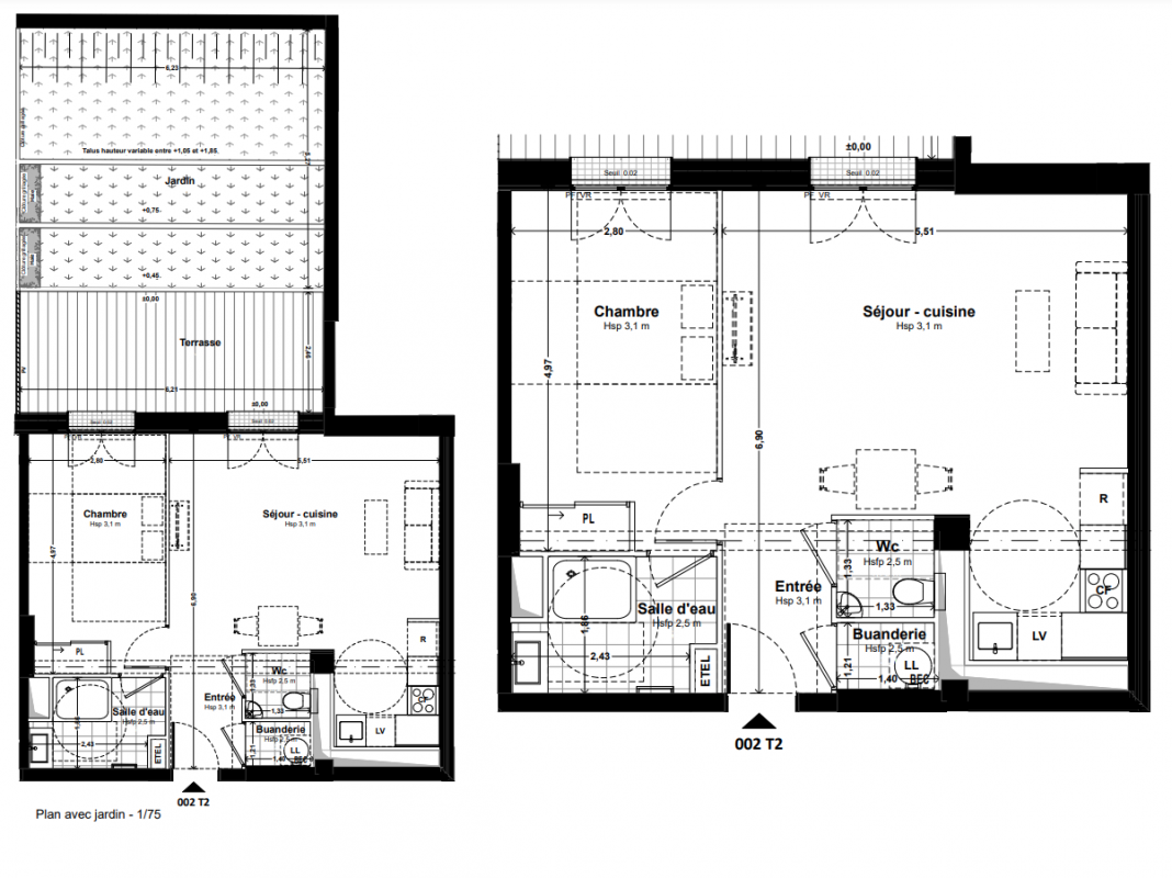
212 500€
363 000€
1 331€
363 000€
1 331€
Type
Appt. au 0-RDC
Appt. au 0-RDC
Pièces
T2
T2
Surface
52.7 m²
52.7 m²
Exposition
-
-
Ville
Issy-les-Moulineaux (92130)
Issy-les-Moulineaux (92130)
Livraison
2ème trimestre 2025
2ème trimestre 2025
Informations
01 81 80 39 10
01 81 80 39 10
Présentation du programme "CARRE DES ARTS"
Autres logements T2 du programme "CARRE DES ARTS"
| Disponibilité | Prix | No | Genre | Pièces | Surface | Étage | Disponibilité | Prix | ||
|---|---|---|---|---|---|---|---|---|---|---|
| Voir | Disponible | 463 000€ | 003 | Appt. | T2 | 46m2 | 0-RDC | Disponible | 463 000€ Prix foncier 152 700€ Prix travaux 280 800€ | Voir |
| Voir | Optionné | 401 000€ | 004 | Appt. | T2 | 39.5m2 | 0-RDC | Optionné Mais pas encore vendu 😉 | 401 000€ Prix foncier 130 900€ Prix travaux 240 600€ | Voir |