348 600€
Appt. au 1er
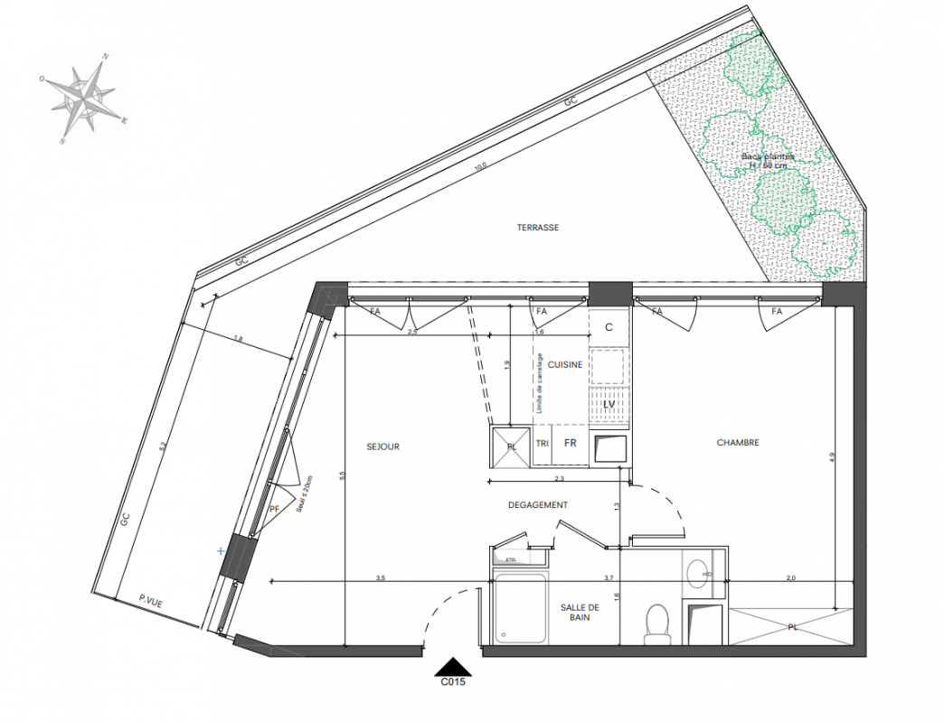
T2
48.67 m²
Nord-Ouest
Nanterre (92000)
4ème trimestre 2028
01 81 80 39 10
Présentation du programme "Programme neuf Nanterre (92000)"
PRIX EN BAISSE pour notre résidence TRIBECA à Nanterre ! Achetez votre appartement 2 pièces, 3 pièces et quelques appartements familiaux ! Prenez vite rendez-vous avec notre équipe pour les découvrir !Dans la continuité du quartier d’affaires, à proximité immédiate de la Grande Arche, West Village poursuit son renouvellement urbain et propose Tribeca, une nouvelle résidence au cœur du quartier des Groues, mixant logements, bureaux et activités, commerces et équipements publics et privés. Accessible depuis le boulevard de La Défense réaménagé et facilité par les nouvelles connexions (avec notamment le prolongement du RER E*, la gare de Nanterre-la-Folie et la ligne 15* en 2030), ce nouveau quartier vient compléter les essentiels, tout proche : l’université, le théâtre des Amandiers, La Défense Arena, les équipements sportifs…Située au centre de ce quartier animé, pleinement intégré à la ville, découvrez nos nouveaux appartements déclinés du 2 au 4 pièces, bénéficiant de multiples orientations ou traversants, permettant d’offrir aux logements un maximum de luminosité ainsi que des vues dégagées pour certains. Tous les logements sont prolongés par un espace extérieur.