Prix
873 000€
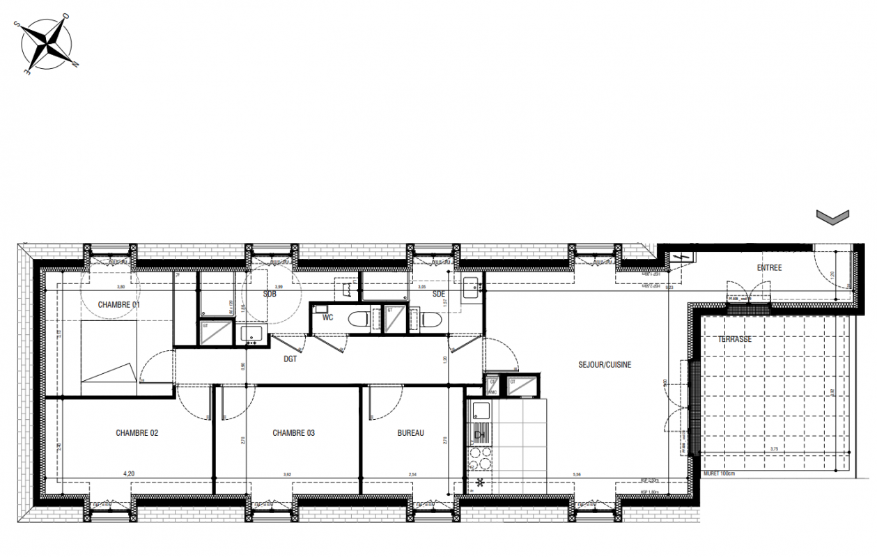
Type
Appt. au 3ème
Pièces
-
Surface
94.08 m²
Exposition
-
Ville
Rueil-Malmaison (92500)
Livraison
4ème trimestre 2026
Informations
01 81 80 39 10

Présentation du programme "Emblème"

PROGRAMME ACTABLE - SUCCES COMMERCIAL / DERNIERES DISPONIBILITES !
ÉLIGIBLE au dispositif Jeanbrun - TRAVAUX EN COURS

Le confort est au rendez-vous de ces appartements d'exception 4 et 5 pièces avec terrasse, aux superficies idéales pour les familles. Dotés de larges baies vitrées, les pièces de vie vont bénéficier d'un ensoleillement et d'un éclairage naturel optimal tout au long de l'année.

Ces espaces confortables et agréables ont été pensés comme le prolongement naturel des logements. Ils s'organisent autour d'un espace collectif central planté d'arbres aux essences locales, favorisant ainsi la biodiversité.

Prestations de qualité : parquet massif, carrelage 60x60, faïence toute hauteur sur les 4 murs, lave-main dans les WC...

Autres logements - du programme "Emblème"

Disponibilité Prix Genre Pièces Surface Étage
Voir
Optionné
757 000€ Appt. - 90.82m2 1er
DO NOT CLICK