Ce lot n’est plus disponible chez VIANOVA ou est vendu.

Vous pouvez revenir dans 24h pour vérifier le stock à jour ou contacter un conseiller Vianova pour vérifier le stock en direct.
Vous pouvez également continuer votre recherche sur notre site « ici ».

Prix
895 000€
Type
Appt. au 4ème
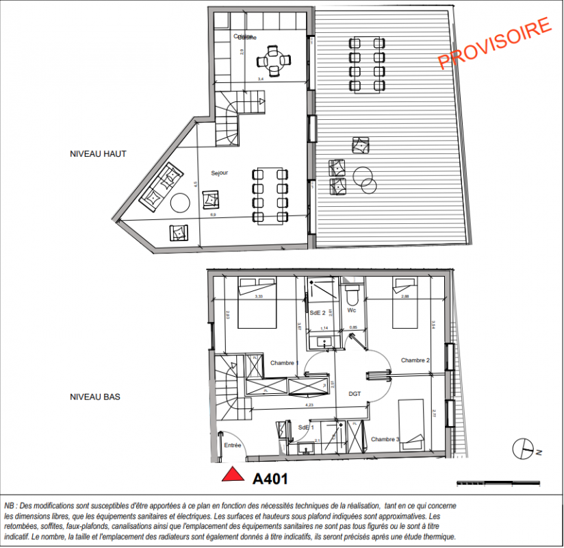
Pièces
T4
Surface
85 m²
Exposition
-
Ville
Vanves (92170)
Livraison
4ème trimestre 2027
Informations
01 81 80 39 10

Présentation du programme "ALLURE"


Carrelage de marque dans la cuisine, la salle de bains, la salle d’eau et les toilettes.
Menuiseries en aluminium bicolore
Parquet posé sur chape isophonique dans l’entrée, le séjour, les chambres, les dégagements et les placards de rangement
Salle de bains aménagée avec un meuble équipé de tiroirs, d’un plan vasque moulé blanc, un miroir sur panneau décoré, applique, pare-douche, parebaignoire.
Radiateur sèche-serviettes électrique,
WC suspendu
Peinture blanche dans toutes les pièces
Placards avec aménagement intérieur
Volets roulants électriques sur toutes les baies vitrées

Autres logements T4 du programme "ALLURE"

Disponibilité Prix Genre Pièces Surface Étage
Voir
Archivé
750 000€ Appt. T4 102.7m2 0-RDC
Voir
Archivé
660 000€ Appt. T4 82.3m2 3ème
Voir
Archivé
1 000 000€ Appt. T4 91.7m2 4ème
DO NOT CLICK