Prix
590 000€
Type
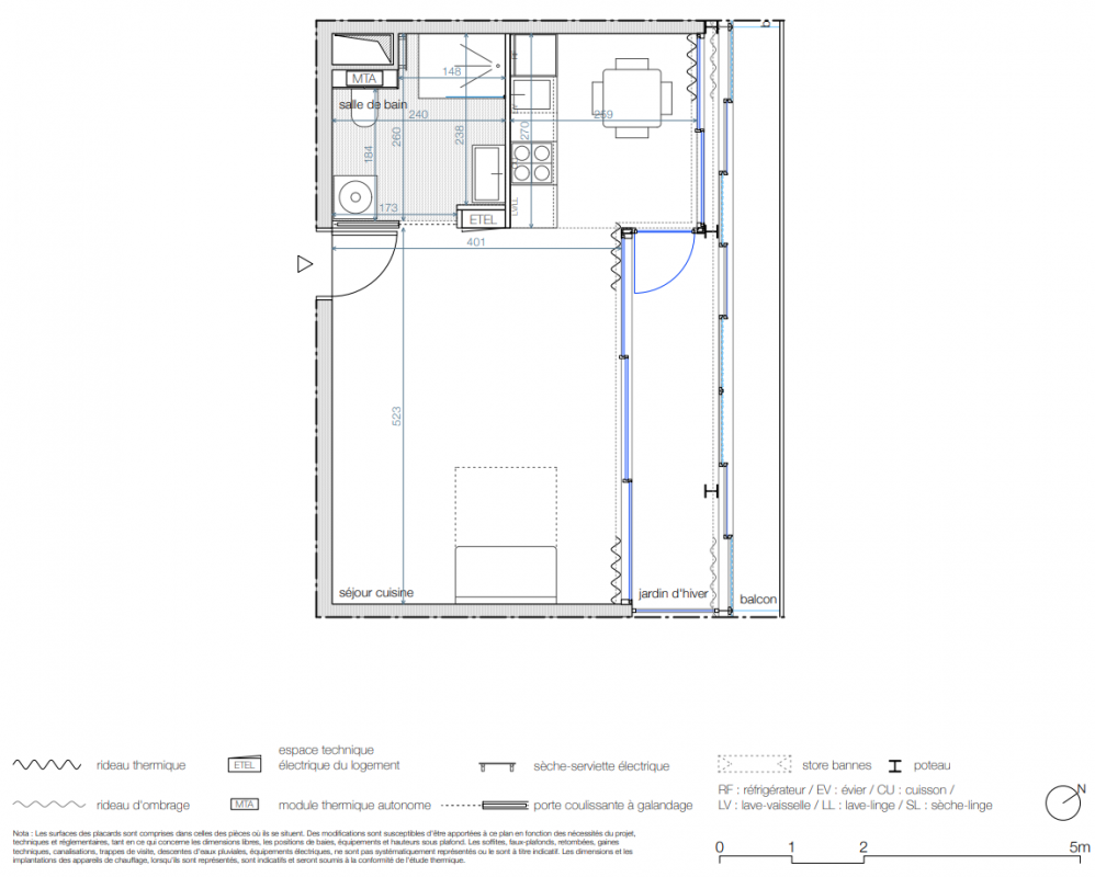
Appt. au 6ème
Pièces
-
Surface
33.2 m²
Exposition
Nord-Est
Ville
Paris 14ème (75014)
Livraison
4ème trimestre 2028
Informations
01 81 80 39 10

Présentation du programme "Pavillon Raspail"

Un nouveau lieu de vie au cœur du quartier Saint-Vincent-de-Paul, rue Boissonade.Au nord du 14ᵉ arrondissement, le quartier de Saint-Vincent-de-Paul se transforme pour inventer une nouvelle manière d’habiter Paris. Un lieu rare, à l’écart de l’agitation urbaine, où le calme, la lumière et la nature s’invitent au quotidien, en plein cœur de la ville.Proche du Jardin du Luxembourg et du métro Raspail, Vianova Résidentiel, accompagné des architectes Lacaton & Vassal, réhabilite l’ancienne maternité Lelong pour lui offrir une nouvelle vie. Fidèle à l’histoire du site, le projet s’inscrit dans une longue tradition d’accueil, de bienveillance et d’attention portée aux usages.Le programme propose 82 logements, du studio au 5 pièces, conçus pour offrir des espaces généreux, lumineux et évolutifs. Chaque appartement bénéficie d’un soin particulier apporté à la qualité des volumes, à la lumière naturelle et aux vues, dans une architecture qui privilégie la liberté d’usage et le confort de vie.La surélévation contemporaine, légère et transparente, accueille des logements prolongés par de véritables espaces extérieurs : jardins d’hiver, balcons ou terrasses. Ces prolongements offrent une relation privilégiée avec le ciel et le paysage, et permettent de vivre dedans-dehors au fil des saisons, dans un cadre rare à Paris.Pensé comme un village urbain, le projet favorise les rencontres et le vivre-ensemble. Les espaces communs constituent le cœur vivant de la résidence, des lieux de partage où chacun est libre de participer ou simplement de profiter d’un environnement apaisé et convivial.Porté par une ambition environnementale forte, le projet valorise la réhabilitation du bâtiment existant, le réemploi des matériaux et des performances énergétiques élevées, tout en encourageant les mobilités douces et une gestion responsable des ressources.Ancienne maternité, le site de Saint-Vincent-de-Paul connaît aujourd’hui une nouvelle renaissance. Une invitation à habiter Paris autrement : plus librement, plus durablement, plus humainement. 

Autres logements - du programme "Pavillon Raspail"

Disponibilité Prix Genre Pièces Surface Étage
Voir
Disponible
970 000€ Appt. - 68.8m2 3ème
Voir
Disponible
1 055 000€ Appt. - 74m2 3ème
Voir
Optionné
700 000€ Appt. - 49.9m2 3ème
Voir
Disponible
1 770 000€ Appt. - 102.6m2 4ème
Voir
Disponible
950 000€ Appt. - 68.8m2 1er
Voir
Disponible
1 350 000€ Appt. - 76.4m2 6ème
Voir
Disponible
700 000€ Appt. - 49.9m2 2ème
Voir
Disponible
560 000€ Appt. - 33.2m2 4ème
Voir
Disponible
960 000€ Appt. - 68.8m2 2ème
Voir
Disponible
870 000€ Appt. - 48.5m2 5ème
Voir
Disponible
1 425 000€ Appt. - 106.9m2 2ème
Voir
Optionné
2 240 000€ Appt. - 123.9m2 5ème
Voir
Disponible
1 360 000€ Appt. - 100.4m2 3ème
Voir
Disponible
840 000€ Appt. - 48.5m2 4ème
Voir
Disponible
695 000€ Appt. - 49.4m2 2ème
Voir
Disponible
1 830 000€ Appt. - 102.6m2 5ème
Voir
Disponible
580 000€ Appt. - 32.9m2 6ème
Voir
Disponible
1 045 000€ Appt. - 74m2 2ème
Voir
Disponible
1 010 000€ Appt. - 53.2m2 7ème
Voir
Disponible
1 280 000€ Appt. - 75.9m2 5ème
Voir
Optionné
1 220 000€ Appt. - 75.9m2 5ème
Voir
Disponible
580 000€ Appt. - 33.2m2 5ème
Voir
Disponible
500 000€ Appt. - 25.5m2 6ème
Voir
Disponible
1 230 000€ Appt. - 69.4m2 6ème
Voir
Disponible
700 000€ Appt. - 49.4m2 3ème
Voir
Disponible
580 000€ Appt. - 32.9m2 6ème
Voir
Disponible
1 345 000€ Appt. - 100.4m2 2ème
Voir
Disponible
1 640 000€ Appt. - 89.5m2 5ème
Voir
Disponible
740 000€ Appt. - 45.7m2 4ème
Voir
Disponible
1 435 000€ Appt. - 106.9m2 3ème
Voir
Disponible
695 000€ Appt. - 49.9m2 1er
Voir
Disponible
1 590 000€ Appt. - 89.5m2 4ème
Voir
Optionné
470 000€ Appt. - 35.7m2 0-RDC
Voir
Optionné
2 140 000€ Appt. - 117.5m2 7ème
Voir
Disponible
1 630 000€ Appt. - 95.4m2 4ème
Voir
Disponible
1 290 000€ Appt. - 76.4m2 4ème
Voir
Disponible
1 720 000€ Appt. - 96.6m2 6ème
Voir
Disponible
570 000€ Appt. - 32.9m2 5ème
Voir
Disponible
1 170 000€ Appt. - 75.9m2 4ème
Voir
Disponible
1 210 000€ Appt. - 69.4m2 5ème
Voir
Disponible
880 000€ Appt. - 48.5m2 6ème
Voir
Disponible
550 000€ Appt. - 32.9m2 4ème
Voir
Optionné
1 130 000€ Appt. - 63.7m2 5ème
Voir
Disponible
1 010 000€ Appt. - 55m2 5ème
Voir
Disponible
490 000€ Appt. - 25.5m2 5ème
Voir
Disponible
1 640 000€ Appt. - 96.6m2 4ème
Voir
Disponible
1 040 000€ Appt. - 60.3m2 4ème
Voir
Disponible
1 690 000€ Appt. - 96.6m2 5ème
Voir
Disponible
1 320 000€ Appt. - 76.5m2 4ème
Voir
Disponible
770 000€ Appt. - 45.7m2 5ème
Voir
Disponible
1 330 000€ Appt. - 76.4m2 5ème
Voir
Disponible
960 000€ Appt. - 55m2 4ème
Voir
Disponible
1 130 000€ Appt. - 63.4m2 6ème
Voir
Disponible
685 000€ Appt. - 49.4m2 1er
Voir
Optionné
1 020 000€ Appt. - 54.2m2 6ème
Voir
Disponible
1 230 000€ Appt. - 66.4m2 6ème
Voir
Disponible
570 000€ Appt. - 32.9m2 5ème
Voir
Disponible
1 350 000€ Appt. - 76.5m2 5ème
Voir
Disponible
1 490 000€ Appt. - 85.1m2 4ème
Voir
Disponible
1 010 000€ Appt. - 54.9m2 5ème
Voir
Disponible
880 000€ Appt. - 49.5m2 4ème
Voir
Disponible
1 040 000€ Appt. - 55.6m2 5ème
Voir
Disponible
1 250 000€ Appt. - 75.9m2 4ème
Voir
Disponible
1 870 000€ Appt. - 102.6m2 6ème
Voir
Disponible
780 000€ Appt. - 45.7m2 6ème
Voir
Disponible
550 000€ Appt. - 32.9m2 4ème
Voir
Disponible
890 000€ Appt. - 50.9m2 4ème
Voir
Optionné
1 670 000€ Appt. - 89.5m2 6ème
Voir
Disponible
930 000€ Appt. - 51.6m2 4ème
DO NOT CLICK