Ce lot n’est plus disponible chez VIANOVA ou est vendu.

Vous pouvez revenir dans 24h pour vérifier le stock à jour ou contacter un conseiller Vianova pour vérifier le stock en direct.
Vous pouvez également continuer votre recherche sur notre site « ici ».

Prix
249 000€
Type
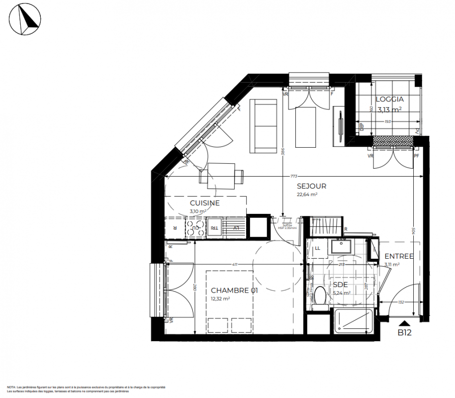
Appt. au 1er
Pièces
T2
Surface
46.31 m²
Exposition
-
Ville
Bussy-Saint-Georges (77600)
Livraison
3ème trimestre 2028
Informations
01 81 80 39 10

Présentation du programme "Le Georges"

Les appartements du Georges sont conçus pour répondre aux attentes de tous les styles de vie. Du studio au 5 pièces duplex, chaque logement offre de beaux volumes, des prestations haut de gamme et des extérieurs (balcon, terrasse ou jardin privatif). Un soin particulier a été apporté au confort thermique et acoustique, dans le respect des dernières normes environnementales.

Autres logements T2 du programme "Le Georges"

Disponibilité Prix Genre Pièces Surface Étage
Voir
Disponible
270 000€ Appt. T2 43.91m2 2ème
Voir
Disponible
265 000€ Appt. T2 46.41m2 2ème
Voir
Disponible
265 000€ Appt. T2 43.93m2 1er
DO NOT CLICK