302 400€
Appt. au 1er
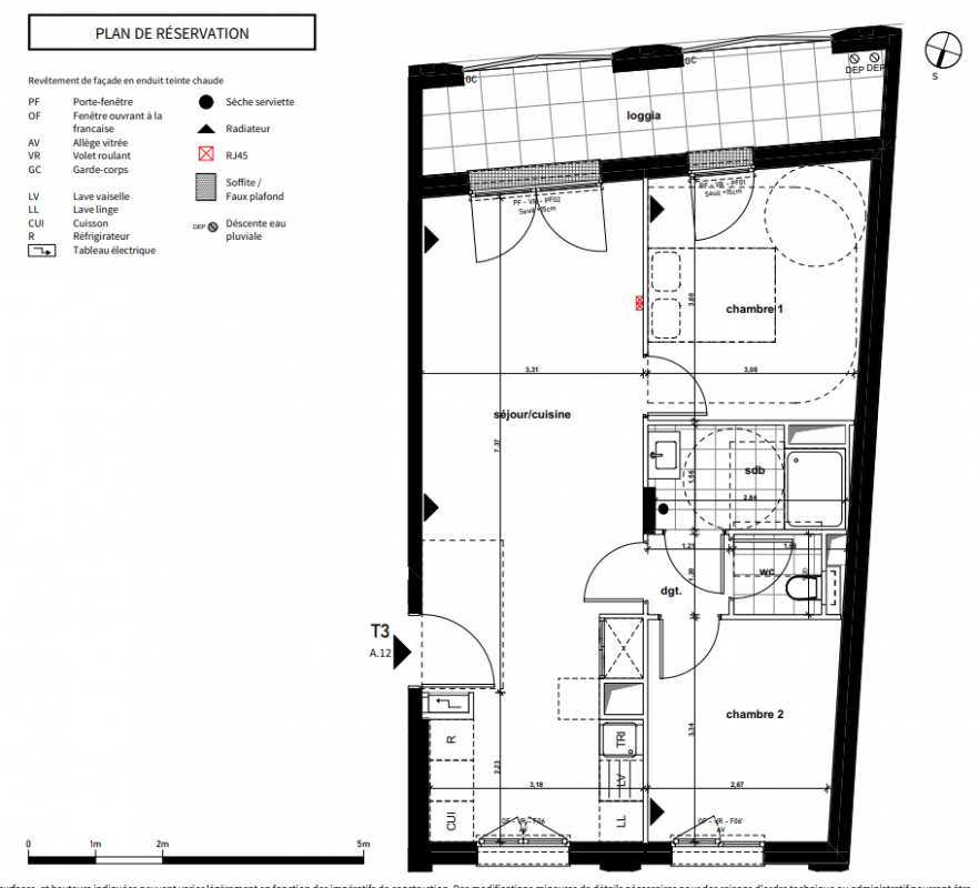
T3
59.6 m²
-
Aubervilliers (93300)
4ème trimestre 2028
01 81 80 39 10
Présentation du programme "CARACTÈRE"
[ POUR VIVRE OU INVESTIR ] // AUBERVILLIERS – Devenez propriétaire de votre résidence principale à un prix inférieur au marché grâce au dispositif ANRU, permettant de bénéficier d’une TVA à 5,5 %.
La résidence CARACTÈRE bénéficie d’un emplacement privilégié, en retrait de la rue, dans un environnement où tout est accessible à pied et où les aménagements paysagers contribuent pleinement au bien-être quotidien. Elle propose des appartements confortables du studio au 5 pièces duplex, dotés de grands espaces extérieurs et de vues dégagées, au sein d’une architecture contemporaine aux teintes sable.
À quelques pas de Paris, Aubervilliers poursuit sa transformation, renforçant son attractivité résidentielle.
L’arrivée de nouvelles lignes de métro, la future gare du Grand Paris Express, le Campus Condorcet — l’un des principaux pôles européens de recherche en sciences humaines et sociales — participent à l’amélioration durable de l’accessibilité du territoire. Après le réaménagement des berges du canal Saint-Denis et du cœur de ville, le Fort d’Aubervilliers est à son tour en plein renouveau, offrant une qualité de vie urbaine et familiale entre arts, sport et nature.
INVESTIR OU DEVENIR PROPRIETAIRE : PROFITEZ DES AVANTAGES !
Ce programme immobilier est éligible à la loi “Jeanbrun”. Maximisez votre investissement avec une étude fiscale personnalisée. Les conseillers Lamotte vous accompagnent dans la création et l’optimisation de votre patrimoine.
Envie de devenir propriétaire de votre résidence principale, bénéficier de toutes les garanties du neuf et du Prêt à Taux Zéro (PTZ) ? Optimisez votre financement et votre capacité d’emprunt en prenant rendez-vous.
Vous êtes éligible à la TVA à 5,5 % en résidence principale ? Contactez-nous afin de vérifier votre statut.
*Prix affichés en TVA 5,5 %. Voir les conditions sur la page Mentions légales de notre site lamotte.fr.
Vous avez plutôt un projet d’investissement locatif ? Le dispositif LMNP est également possible.
Contactez nos conseillers Lamotte à PARIS ou rendez-vous sur LAMOTTE.FR pour en savoir plus.
Autres logements T3 du programme "CARACTÈRE"
| Disponibilité | Prix | No | Genre | Pièces | Surface | Étage | Disponibilité | Prix | ||
|---|---|---|---|---|---|---|---|---|---|---|
| Voir | Disponible | 331 200€ | A32 | Appt. | T3 | 64.1m2 | 3ème | Disponible | 331 200€ | Voir |
| Voir | Disponible | 349 800€ | A42 | Appt. | T3 | 64.1m2 | 4ème | Disponible | 349 800€ | Voir |
| Voir | Disponible | 338 400€ | A52 | Appt. | T3 | 64.1m2 | 5ème | Disponible | 338 400€ | Voir |
| Voir | Disponible | 342 000€ | A62 | Appt. | T3 | 64.1m2 | 6ème | Disponible | 342 000€ | Voir |
| Voir | Disponible | 345 600€ | A72 | Appt. | T3 | 64.1m2 | 5ème | Disponible | 345 600€ | Voir |
| Voir | Disponible | 348 000€ | A82 | Appt. | T3 | 64.1m2 | 8ème | Disponible | 348 000€ | Voir |
| Voir | Disponible | 333 600€ | B21 | Appt. | T3 | 65.1m2 | 2ème | Disponible | 333 600€ | Voir |
| Voir | Disponible | 333 600€ | B22 | Appt. | T3 | 65.1m2 | 2ème | Disponible | 333 600€ | Voir |
| Voir | Disponible | 337 200€ | B32 | Appt. | T3 | 65.1m2 | 3ème | Disponible | 337 200€ | Voir |
| Voir | Disponible | 340 800€ | B41 | Appt. | T3 | 65.1m2 | 4ème | Disponible | 340 800€ | Voir |
| Voir | Disponible | 340 800€ | B42 | Appt. | T3 | 65.1m2 | 4ème | Disponible | 340 800€ | Voir |