Prix
226 351€  (TVA 20%)
199 000€  (TVA 5.5%)
Type
Appt. au 5ème
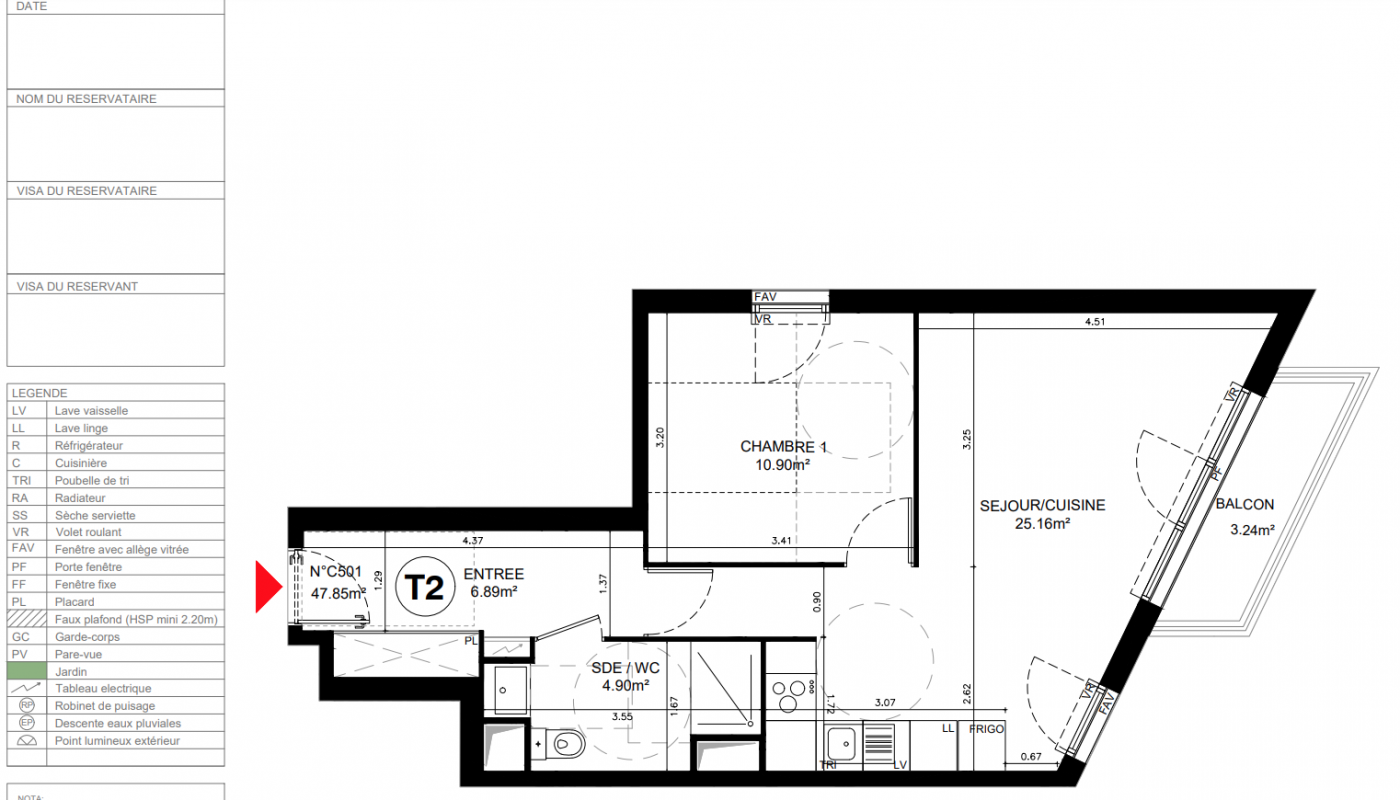
Pièces
T2
Surface
47.85 m²
Exposition
Est
Ville
Aulnay-sous-Bois (93600)
Livraison
3ème trimestre 2027
Informations
01 81 80 39 10

Présentation du programme "LE CLOS CHAGALL"

NOUVEAU A AULNAY-SOUS-BOIS (93) - Rue Maurice Utrillo, VINCI Immobilier vous invite à découvrir "LE CLOS CHAGALL" une nouvelle résidence à l’architecture moderne. Vous serez séduits par un large choix d’appartements du studio au 5 pièces prolongés d’un balcon, d’une terrasse ou d’un jardin privatif en rez-de-chaussée. Votre quotidien sera facilité par les commerces de proximité, les équipements scolaires, publics et sportifs. Les lignes de bus situées au pied de la résidence vous mèneront à la gare RER B d’Aulnay-sous-Bois et de Villepinte pour rejoindre Paris-Gare du Nord en 20 minutes. A horizon 2026 dans le cadre du Grand Paris Express, la future station « Aulnay » du métro 16 située à 1km de la résidence, complètera la desserte. Vous profiterez pour l’acquisition de votre résidence principale d’une TVA réduite à 5,5% (sous conditions, disponibles auprès de nos conseillers). Vous profiterez pour l’acquisition de votre résidence principale du nouveau PTZ et dans le cadre d’un investissement locatif du dispositif PINEL+. Espace de vente : rue Sadi Carnot - Parking de l’Espace Culturel - 93700 DRANCY

Autres logements T2 du programme "LE CLOS CHAGALL"

Pas de logements disponibles
DO NOT CLICK