366 142€ (TVA 20%)
321 900€ (TVA 5.5%)
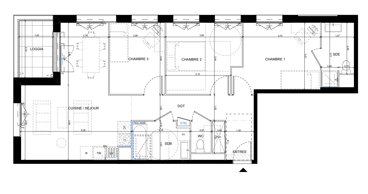
Appt. au 4ème
-
79.96 m²
-
Bondy (93140)
3ème trimestre 2028
01 81 80 39 10
Présentation du programme "LES REFLETS DE L'OURCQ"
LES REFLETS DE L'OURCQ - Appartements neufs à Bondy.
FRAIS DE NOTAIRE OFFERTS + 3 000 EUROS DE REMISE/PIECE*
Située rue Aretha Franklin, la résidence prend place au coeur d'un nouveau quartier en développement, en bordure du canal de l'Ourcq, à proximité immédiate des commerces, des écoles et des transports.
La résidence propose 49 appartements du studio au 4 pièces, adaptés aux différents projets de vie, en résidence principale comme en investissement.
Signée par une architecture contemporaine aux lignes épurées, la résidence associe harmonieusement béton, bois et verre. Les façades élégantes et les garde-corps vitrés favorisent les apports de lumière naturelle et offrent des vues dégagées sur l'environnement.
Côté jardin, un coeur d'îlot paysager accueille une véritable micro-forêt urbaine, avec des essences variées et des espaces partagés favorisant la biodiversité et la convivialité.
Les appartements offrent des espaces de vie lumineux et fonctionnels, avec cuisine ouverte sur séjour et agencements optimisés.
Chaque logement bénéficie d'un espace extérieur privatif (balcon, terrasse ou jardin), conçu comme un prolongement naturel du logement.
Les + du programme :
• Résidence en bord de canal, environnement paysager
• Micro-forêt, potager partagé et espaces verts
• Local vélos et mobilités douces favorisées
• Résidence sécurisée (vidéophone)
• Prestations de qualité et confort d'été optimisé (volets motorisés, vitrages adaptés)
• Commerces en pied d'immeuble
Au quotidien, profitez d'un emplacement stratégique :
• Canal de l'Ourcq et pistes cyclables à proximité immédiate
• Tramway T1 "Pont de Bondy" à quelques minutes
• RER E reliant Paris Gare du Nord en environ 23 minutes
• Future ligne 15 du Grand Paris Express (connexion La Défense facilitée)
• Commerces, marchés, écoles et équipements accessibles à pied
Un cadre de vie équilibré entre dynamisme urbain et respiration naturelle, aux portes de Paris, idéal pour habiter ou investir dans un secteur en pleine transformation.
Contactez-nous dès maintenant au 01 87 52 25 22 pour obtenir plus d'informations et découvrir les logements disponibles.
* Offres promotionnelles valables du 01/03/2026 au 30/04/2026 inclus, dans la limite des stocks disponibles, sous rése
Autres logements - du programme "LES REFLETS DE L'OURCQ"
| Disponibilité | Prix | No | Genre | Pièces | Surface | Étage | Disponibilité | Prix | ||
|---|---|---|---|---|---|---|---|---|---|---|
| Voir | Disponible | 245 573€ | A01 | Appt. | - | 47.38m2 | 0-RDC | Disponible | 245 573€ | Voir |
| Voir | Disponible | 173 915€ | A11 | Appt. | - | 28.61m2 | 1er | Disponible | 173 915€ | Voir |
| Voir | Disponible | 294 483€ | A12 | Appt. | - | 60.41m2 | 1er | Disponible | 294 483€ | Voir |
| Voir | Disponible | 343 393€ | A15 | Appt. | - | 81.6m2 | 1er | Disponible | 343 393€ | Voir |
| Voir | Disponible | 177 327€ | A21 | Appt. | - | 28.61m2 | 2ème | Disponible | 177 327€ | Voir |
| Voir | Disponible | 297 896€ | A22 | Appt. | - | 60.41m2 | 2ème | Disponible | 297 896€ | Voir |
| Voir | Disponible | 349 081€ | A25 | Appt. | - | 81.6m2 | 2ème | Disponible | 349 081€ | Voir |
| Voir | Disponible | 180 739€ | A31 | Appt. | - | 27.61m2 | 3ème | Disponible | 180 739€ | Voir |
| Voir | Disponible | 301 308€ | A32 | Appt. | - | 60.41m2 | 3ème | Disponible | 301 308€ | Voir |
| Voir | Disponible | 289 934€ | A33 | Appt. | - | 58.5m2 | 3ème | Disponible | 289 934€ | Voir |
| Voir | Disponible | 227 374€ | A34 | Appt. | - | 36.53m2 | 3ème | Disponible | 227 374€ | Voir |
| Voir | Disponible | 354 768€ | A35 | Appt. | - | 81.6m2 | 3ème | Disponible | 354 768€ | Voir |
| Voir | Disponible | 360 455€ | A44 | Appt. | - | 81.6m2 | 4ème | Disponible | 360 455€ | Voir |
| Voir | Disponible | 235 336€ | A53 | Appt. | - | 37m2 | 5ème | Disponible | 235 336€ | Voir |
| Voir | Disponible | 317 232€ | A54 | Appt. | - | 60.99m2 | 5ème | Disponible | 317 232€ | Voir |
| Voir | Disponible | 388 891€ | A61 | Appt. | - | 89.98m2 | 6ème | Disponible | 388 891€ | Voir |
| Voir | Disponible | 343 393€ | B11 | Appt. | - | 81.6m2 Le bon plan | 1er | Disponible | 343 393€ | Voir |
| Voir | Disponible | 312 682€ | B13 | Appt. | - | 69m2 | 1er | Disponible | 312 682€ | Voir |
| Voir | Disponible | 294 483€ | B14 | Appt. | - | 63.21m2 | 1er | Disponible | 294 483€ | Voir |
| Voir | Disponible | 349 081€ | B21 | Appt. | - | 81.6m2 | 2ème | Disponible | 349 081€ | Voir |
| Voir | Disponible | 317 232€ | B23 | Appt. | - | 69.02m2 | 2ème | Disponible | 317 232€ | Voir |
| Voir | Disponible | 354 768€ | B31 | Appt. | - | 81.6m2 | 3ème | Disponible | 354 768€ | Voir |
| Voir | Disponible | 411 640€ | B32 | Appt. | - | 79.5m2 | 3ème | Disponible | 411 640€ | Voir |
| Voir | Optionné | 238 749€ | B34 | Appt. | - | 45.22m2 | 3ème | Optionné Mais pas encore vendu 😉 | 238 749€ | Voir |
| Voir | Disponible | 360 455€ | B41 | Appt. | - | 81.6m2 | 4ème | Disponible | 360 455€ | Voir |
| Voir | Disponible | 349 081€ | B42 | Appt. | - | 79.5m2 | 4ème | Disponible | 349 081€ | Voir |
| Voir | Optionné | 243 299€ | B44 | Appt. | - | 45.23m2 | 4ème | Optionné Mais pas encore vendu 😉 | 243 299€ | Voir |
| Voir | Disponible | 317 232€ | B51 | Appt. | - | 60.99m2 | 5ème | Disponible | 317 232€ | Voir |
| Voir | Disponible | 235 336€ | B54 | Appt. | - | 37m2 | 5ème | Disponible | 235 336€ | Voir |
| Voir | Disponible | 388 891€ | B61 | Appt. | - | 89.98m2 | 6ème | Disponible | 388 891€ | Voir |
| Voir | Disponible | 322 919€ | A42 | Appt. | - | 69.31m2 | 4ème | Disponible | 322 919€ | Voir |
| Voir | Disponible | 301 308€ | B43 | Appt. | - | 62.35m2 | 4ème | Disponible | 301 308€ | Voir |
| Voir | Disponible | 437 801€ | A51 DUPLEX | Appt. | - | 96.05m2 | 5ème | Disponible | 437 801€ | Voir |