366 142€ (TVA 20%)
321 900€ (TVA 5.5%)
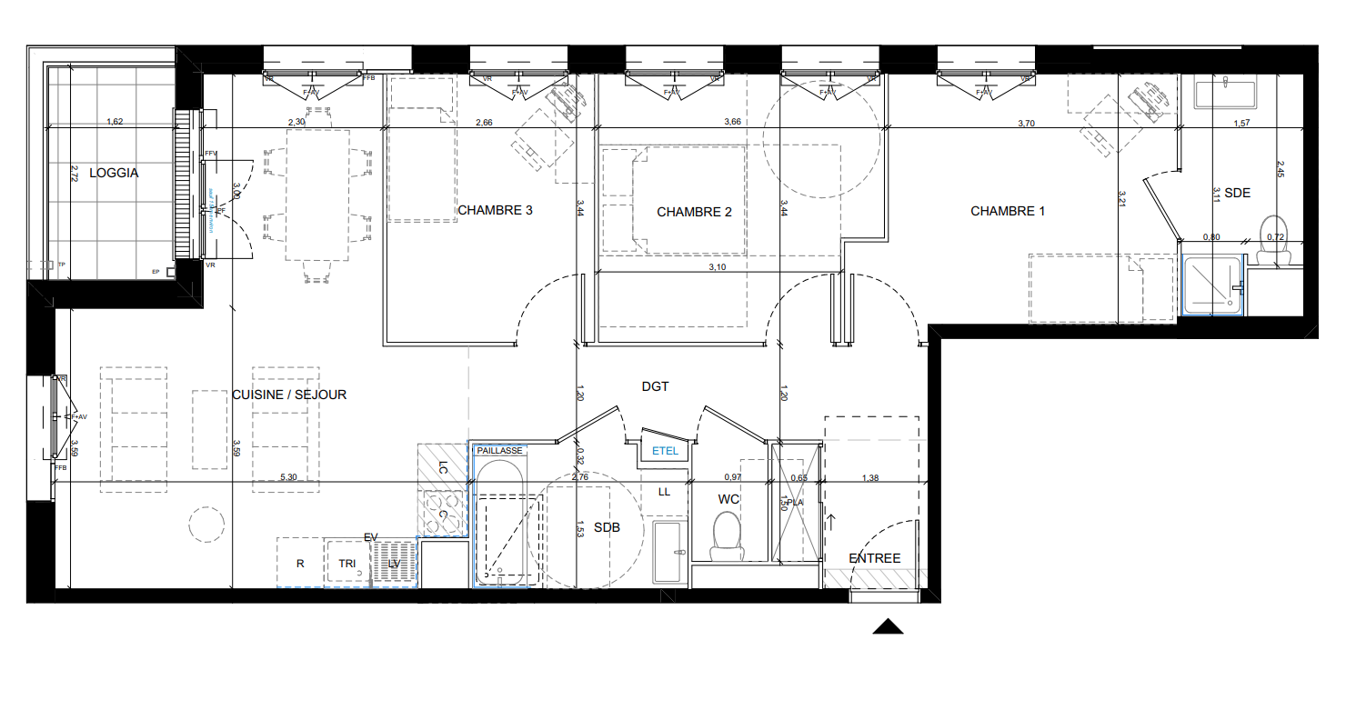
Appt. au 4ème
T4
79.96 m²
-
Bondy (93140)
3ème trimestre 2028
01 81 80 39 10
Présentation du programme "LES REFLETS DE L'OURCQ"
FRAIS DE NOTAIRE OFFERTS + 3 000 EUROS DE REMISE/PIECE*
Située rue Aretha Franklin, la résidence prend place au coeur d'un nouveau quartier en développement, en bordure du canal de l'Ourcq, à proximité immédiate des commerces, des écoles et des transports.
La résidence propose 49 appartements du studio au 4 pièces, adaptés aux différents projets de vie, en résidence principale comme en investissement.
Signée par une architecture contemporaine aux lignes épurées, la résidence associe harmonieusement béton, bois et verre. Les façades élégantes et les garde-corps vitrés favorisent les apports de lumière naturelle et offrent des vues dégagées sur l'environnement.
Côté jardin, un coeur d'îlot paysager accueille une véritable micro-forêt urbaine, avec des essences variées et des espaces partagés favorisant la biodiversité et la convivialité.
Les appartements offrent des espaces de vie lumineux et fonctionnels, avec cuisine ouverte sur séjour et agencements optimisés.
Chaque logement bénéficie d'un espace extérieur privatif (balcon, terrasse ou jardin), conçu comme un prolongement naturel du logement.
Les + du programme :
• Résidence en bord de canal, environnement paysager
• Micro-forêt, potager partagé et espaces verts
• Local vélos et mobilités douces favorisées
• Résidence sécurisée (vidéophone)
• Prestations de qualité et confort d'été optimisé (volets motorisés, vitrages adaptés)
• Commerces en pied d'immeuble
Au quotidien, profitez d'un emplacement stratégique :
• Canal de l'Ourcq et pistes cyclables à proximité immédiate
• Tramway T1 "Pont de Bondy" à quelques minutes
• RER E reliant Paris Gare du Nord en environ 23 minutes
• Future ligne 15 du Grand Paris Express (connexion La Défense facilitée)
• Commerces, marchés, écoles et équipements accessibles à pied
Un cadre de vie équilibré entre dynamisme urbain et respiration naturelle, aux portes de Paris, idéal pour habiter ou investir dans un secteur en pleine transformation.
Contactez-nous dès maintenant au 01 87 52 25 22 pour obtenir plus d'informations et découvrir les logements disponibles.
Autres logements T4 du programme "LES REFLETS DE L'OURCQ"
| Disponibilité | Prix | No | Genre | Pièces | Surface | Étage | Disponibilité | Prix | ||
|---|---|---|---|---|---|---|---|---|---|---|
| Voir | Disponible | 411 640€ | B32 | Appt. | T4 | 79.5m2 | 3ème | Disponible | 411 640€ | Voir |
| Voir | Disponible | 349 081€ | B42 | Appt. | T4 | 79.5m2 | 4ème | Disponible | 349 081€ | Voir |
| Voir | Disponible | 343 393€ | A15 | Appt. | T4 | 81.6m2 | 1er | Disponible | 343 393€ | Voir |
| Voir | Disponible | 349 081€ | B21 | Appt. | T4 | 81.6m2 | 2ème | Disponible | 349 081€ | Voir |
| Voir | Disponible | 354 768€ | B31 | Appt. | T4 | 81.6m2 | 3ème | Disponible | 354 768€ | Voir |
| Voir | Disponible | 360 455€ | B41 | Appt. | T4 | 81.6m2 | 4ème | Disponible | 360 455€ | Voir |
| Voir | Disponible | 349 081€ | A25 | Appt. | T4 | 81.6m2 | 2ème | Disponible | 349 081€ | Voir |
| Voir | Disponible | 354 768€ | A35 | Appt. | T4 | 81.6m2 | 3ème | Disponible | 354 768€ | Voir |
| Voir | Disponible | 360 455€ | A44 | Appt. | T4 | 81.6m2 | 4ème | Disponible | 360 455€ | Voir |
| Voir | Disponible | 343 393€ | B11 | Appt. | T4 | 81.6m2 Le bon plan | 1er | Disponible | 343 393€ | Voir |
| Voir | Disponible | 388 891€ | B61 | Appt. | T4 | 89.98m2 | 6ème | Disponible | 388 891€ | Voir |
| Voir | Disponible | 388 891€ | A61 | Appt. | T4 | 89.98m2 | 6ème | Disponible | 388 891€ | Voir |