Prix
202 000€ (TVA 20%)
185 167€ (TVA 10%)
202 000€ (TVA 20%)
185 167€ (TVA 10%)
Type
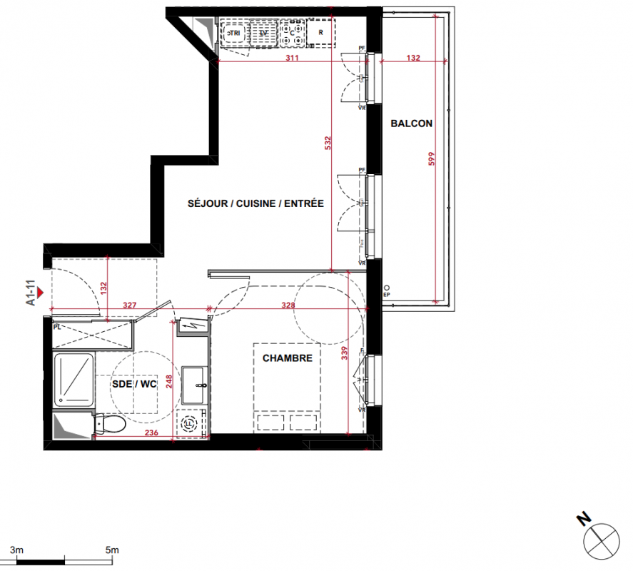
Appt. au 1er
Appt. au 1er
Pièces
T2
T2
Surface
41.56 m²
41.56 m²
Exposition
-
-
Ville
Dugny (93440)
Dugny (93440)
Livraison
4ème trimestre 2028
4ème trimestre 2028
Informations
01 81 80 39 10
01 81 80 39 10
Présentation du programme "Ora"
Bénéficiez d'un cadre de vie unique, connecté et pratique : à 5 min de la future ligne 17 du Grand Paris Express (Le Bourget), accès rapide à l'A1 et l'A86, commerces, écoles et services à proximité immédiate et au pied d'un parc de 417 ha, Ora s'inscrit dans la continuité du quartier des Jeux Olympiques, déjà salué pour sa réussite urbaine et paysagère.
Devenez propriétaire de votre appartement neuf, du studio au 5 pièces avec jardin, balcon, loggia ou terrasse et bénéficiez du nouveau Prêt à Taux Zéro (PTZ) pour compléter votre financement !
Autres logements T2 du programme "Ora"
| Disponibilité | Prix | No | Genre | Pièces | Surface | Étage | Disponibilité | Prix | ||
|---|---|---|---|---|---|---|---|---|---|---|
| Voir | Disponible | 199 000€ | A2 44 | Appt. | T2 | 38.18m2 | 4ème | Disponible | 199 000€ | Voir |
| Voir | Disponible | 204 000€ | A1 41 | Appt. | T2 | 42.65m2 | 4ème | Disponible | 204 000€ | Voir |
| Voir | Disponible | 209 000€ | A2 03 | Appt. | T2 | 44.17m2 Le bon plan | 0-RDC | Disponible | 209 000€ | Voir |