304 834€ (TVA 20%)
268 000€ (TVA 5.5%)
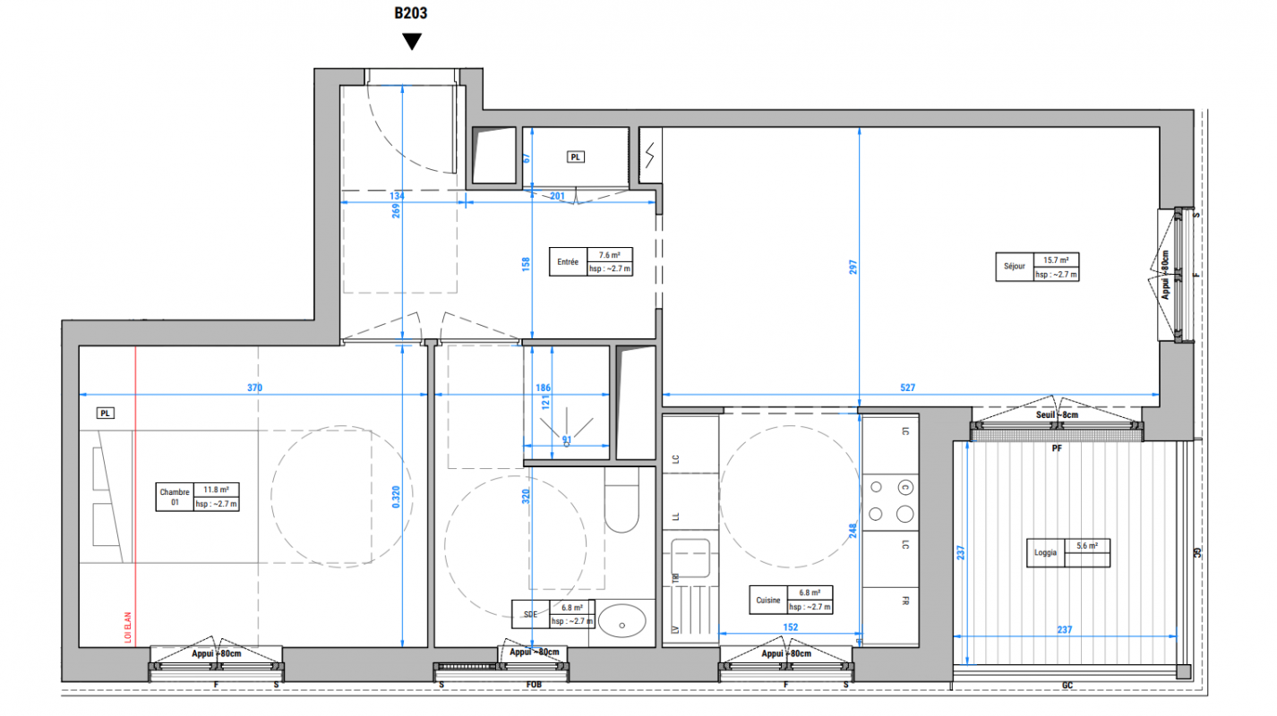
Appt. au 2ème
-
48.7 m²
Sud-Ouest
Saint-Denis (93200)
2ème trimestre 2028
01 81 80 39 10
Présentation du programme "Reflets"
Vivez au cœur d’un quartier dynamique en pleine transformation, à quelques minutes de Paris ! Idéalement située au bord du canal de Saint-Denis, cette nouvelle résidence s’intègre dans un environnement en plein essor, bénéficiant de projets de réhabilitation urbaine, d’espaces verts et d’infrastructures modernes.? Des logements spacieux et lumineuxDes appartements du studio au 5 pièces, adaptés à tous les styles de vieExtérieurs pour tous les logements : Chaque appartement dispose d'un espace extérieur pour profiter pleinement de la lumière naturelle et des multiples expositions.Urbanisme durable : Conception respectueuse de l'environnement avec des matériaux durables et des espaces verts intégrés.Nombreux locaux vélos en rez-de-chausséeCertifications : RE2020 seuil 2025, NF HABITAT HQE 7, Label biosourcé niveau 1? Accessibilité et transportsParfaitement desservie par les transports en commun :Tramways : T1, T8Trains & RER : Gare RER D et ligne HMétro : Ligne 13Bus : 237, 274, 254, 170Accès rapide aux autoroutes A1, A86 et au périphérique Nord (moins de 10 min en voiture)? Un cadre de vie privilégiéBord du Canal de Saint-Denis : Profitez d'un cadre de vie paisible et agréable au bord du canal.Proximité immédiate des commerces, écoles et parcsUn quartier en pleine mutation avec de nouveaux espaces verts et infrastructures modernes
Autres logements - du programme "Reflets"
| Disponibilité | Prix | No | Genre | Pièces | Surface | Étage | Disponibilité | Prix | ||
|---|---|---|---|---|---|---|---|---|---|---|
| Voir | Disponible | 315 071€ | C302 | Appt. | - | 61.2m2 | 3ème | Disponible | 315 071€ | Voir |
| Voir | Disponible | 342 370€ | C003 | Appt. | - | 66.8m2 | 0-RDC | Disponible | 342 370€ | Voir |
| Voir | Disponible | 326 445€ | C501 | Appt. | - | 61.2m2 | 5ème | Disponible | 326 445€ | Voir |
| Voir | Disponible | 299 147€ | C202 | Appt. | - | 61.2m2 | 2ème | Disponible | 299 147€ | Voir |
| Voir | Disponible | 359 431€ | C106 | Appt. | - | 67.1m2 | 1er | Disponible | 359 431€ | Voir |
| Voir | Optionné | 237 725€ | B001 | Appt. | - | 41.3m2 | 0-RDC | Optionné Mais pas encore vendu 😉 | 237 725€ | Voir |
| Voir | Disponible | 296 872€ | B002 | Appt. | - | 50.6m2 | 0-RDC | Disponible | 296 872€ | Voir |
| Voir | Disponible | 345 782€ | C203 | Appt. | - | 68.7m2 | 2ème | Disponible | 345 782€ | Voir |
| Voir | Disponible | 365 118€ | C206 | Appt. | - | 67.1m2 | 2ème | Disponible | 365 118€ | Voir |
| Voir | Disponible | 508 436€ | C406 | Appt. | - | 109.1m2 | 4ème | Disponible | 508 436€ | Voir |
| Voir | Disponible | 500 474€ | C401 | Appt. | - | 107.6m2 Le bon plan | 4ème | Disponible | 500 474€ | Voir |
| Voir | Disponible | 333 270€ | C002 | Appt. | - | 68.6m2 | 0-RDC | Disponible | 333 270€ | Voir |
| Voir | Disponible | 361 706€ | C304 | Appt. | - | 66.7m2 | 3ème | Disponible | 361 706€ | Voir |
| Voir | Disponible | 432 227€ | C101 | Appt. | - | 86.7m2 | 1er | Disponible | 432 227€ | Voir |
| Voir | Disponible | 401 517€ | B201 | Appt. | - | 83m2 | 2ème | Disponible | 401 517€ | Voir |
| Voir | Disponible | 358 294€ | C403 | Appt. | - | 68.7m2 | 4ème | Disponible | 358 294€ | Voir |
| Voir | Disponible | 368 531€ | C404 | Appt. | - | 66.7m2 | 4ème | Disponible | 368 531€ | Voir |
| Voir | Disponible | 348 057€ | C104 | Appt. | - | 66.7m2 | 1er | Disponible | 348 057€ | Voir |
| Voir | Disponible | 449 289€ | C301 | Appt. | - | 86.7m2 | 3ème | Disponible | 449 289€ | Voir |
| Voir | Disponible | 373 081€ | C306 | Appt. | - | 67.1m2 | 3ème | Disponible | 373 081€ | Voir |
| Voir | Disponible | 352 607€ | C303 | Appt. | - | 68.7m2 | 3ème | Disponible | 352 607€ | Voir |
| Voir | Disponible | 441 327€ | C201 | Appt. | - | 86.7m2 | 2ème | Disponible | 441 327€ | Voir |
| Voir | Disponible | 393 554€ | B101 | Appt. | - | 83m2 | 1er | Disponible | 393 554€ | Voir |
| Voir | Disponible | 338 957€ | C103 | Appt. | - | 68.7m2 | 1er | Disponible | 338 957€ | Voir |
| Voir | Disponible | 365 118€ | C502 | Appt. | - | 68.7m2 | 5ème | Disponible | 365 118€ | Voir |
| Voir | Disponible | 356 019€ | C204 | Appt. | - | 66.7m2 | 2ème | Disponible | 356 019€ | Voir |
| Voir | Disponible | 408 341€ | B301 | Appt. | - | 83m2 | 3ème | Disponible | 408 341€ | Voir |
| Voir | Disponible | 375 355€ | C503 | Appt. | - | 66.7m2 | 5ème | Disponible | 375 355€ | Voir |
| Voir | Disponible | 192 227€ | C405 | Appt. | - | 29.7m2 | 4ème | Disponible | 192 227€ | Voir |